前言:不同于往期文章介绍建房工艺,本期更多的是一个女人的辛酸苦辣,
超长文慎入!
序言:我的老家,远在千里之外;两个年迈的、重病在身的老人,为了落叶归根的信念在辛苦奔波。
因经济有限,想给父母盖一个养老房,预算在5-8万之间,最多不能超过10万。
但是,无论如果,这个房子是一定要盖得,就是想怎样能做大经济、实用、美观,还兼具长远的用途。
我家姐弟四个,两个都在外省工作定居了,还有两个姐妹嫁在本市,但因为长在外地打工(三姐弟在一个城市),也很少回去,父母现在在这里帮忙带小孩,估计5年后才可能回去养老。
但是,为了满足父母落叶归根的心里,给他们一个心里安慰;也为了过年过节时有个老家可回,我打算乘他们还能动时,给他们盖好养老房。因为姐弟们经济都有限,还要顾自己的小家,还要考虑父母的养老问题,能接受的也只能是10万以内的预算了。
但是,想到还是要给自己和姐弟们在老家留一个根,能在父母有生之年回家时有个团聚的住所,还是希望这个房子能容纳四个家庭的人口最好。
我想了下,这个房子的功能要求有:
1、一楼能满足父母平时的日常起居(一卧、一厅、一厕、一厨)
2、二楼最好有四个卧室,一个客厅(房间小点没关系,主要是为了姐弟们过年回家短住几日)
3、按父母的心愿,要把所有的地基圈起来做个院子

房子的外观和结构希望做成这种造型!
根据我对工业园规划和高速公路规划的了解和研究,5年、10年内占到我家老宅基地的几率很小;另外,我觉得就算10年内真的占到,补偿款其实也不会很高的(或者换句话讲,那些补偿款的收益率不是很高)。
我理解父母也有点像老家的农村人心里,想尽可能地多盖点房,简陋点没关系。
我的心里是想这个房子够她们以后养老用就好,关键是要住得舒服,不去想*迁拆**不*迁拆**的。
鉴于父母的心里和以往的经验,我一定要在前期控制好房子的面积、结构,要不,以后盖着盖着钱不够,我也不得不继续增加(这个钱算是我出的,别的姐弟也不会出,我一是不想,二是没有更多的余钱了,尤其是不能让老公难受——话说,这些年已经给父母弟妹们花了二十万左右吧,自己的小家庭还处于起步阶段呢)。


我的原则还是尽量做结实点,至少能住10年以上吧。
以上是我初步设想的布局图,包括两个方案:
一、做两层:一楼做成一房两厅,去掉东面的两个卧室,二楼做三房一厅;
二:做一层:东面加上两个卧室,做成三房两厅,这样客厅和餐厅的面积就要缩小不少了。
按我妈的意思和村里的传统,厨房、卫生间是在正房旁边另外盖一个小平房。
我对建房造价这些不太懂,不知道两个方案的造价相差多少呢?
想想父母为我们辛劳了一辈子,盖房这件事算是他们难得放在心上的,就算自己辛苦点,也尽量满足他们吧。其实,我姐也还有10万现金不用,也答应万一不够,可以给我妈她们先用;但是,姐姐她们赚钱也不容易,我父母也不想用她们的,就算用了,以后也是要还的(我的钱就不用还了,当帮带小孩的辛苦费吧——以前也是这样想的,所以一直是我家负担弟弟上学、父母生病手术的一切费用,老公也能接受,姐弟几个也没什么计较的。)
其实,说到底,我是不想花太多的钱(也没那么多余钱)给父母盖一个很难回去住的房子(家里仅有的一个弟弟也在我这个城市工作,这一两年也要结婚了,估计以后也不会回老家生活,父母估计还要继续帮他们带小孩,很难回去的,我以后还要尽快攒点钱帮他付个首付买个房子呢;自己家这几年也需要换个大房,用钱的地方多着呢,但工资却是有限的可怜。)
虽然是三姐妹一弟弟,另两个姐妹经济条件不太好,弟弟刚毕业不久也没啥钱,父母是不会找他们的,他们也不会主动给的,我是打算我家一家出钱的。
以前,帮家里还账、弟弟上大学、父母受伤生病手术,我家已经独自陆陆续续花了20多万。
以后,还要帮弟弟买房、给父母养老治病的钱呢(爸爸做过心室支架手术,父母俩都有糖尿病,要一直吃药呢),所以,我想把钱留着花在刀刃上(当然,必须的花费还是要的)


以上为我第六次更改后的平面布局图,两层结构,一层面积66平,共132平左右。
如果按砖混结构500元一平计算,总价约6.6左右,加上厨房、厕所及装修费用,10万元应该可以做了吧。
盖这个房子的目的,主要是为父母以后养老,第二个就是为姐弟几个提供能时常回家看望父母、团聚的场所,不至于每年过年千里迢迢回老家后没地方可去(以前回老家都是住酒店的,算是有家难回吧,很伤心,不想以后若干年还是这样。)
我家姐弟和父母的所有事情都是我来操心的,盖这个房子也算是我为父母、姐弟今后10年、20年生活的一个美好设想和安排吧。




以上图片是老家城里的相片(我从高中开始生活的地方周边),还有高中前生活的农村(附近就是亚洲最大的火电厂和工业园,还有汉江和美丽的油菜花。)
老家村里的很多人对这个电厂是又爱又恨,因为它,给老家带来比较便利的交通和就业、致富机会;因为它,清澈的汉江水逐渐变黑了,湛蓝的天空也变成灰蒙蒙的了。老家的人怕地下水都有问题,都不敢喝啦,很多家都在喝桶装水,还有谣言说以后这里都不能住人啦,全部要搬迁走。
我听了觉得好笑又悲哀,看看珠三角,城市、农村都被各种重污染工厂、园区包围,往哪里搬呢?
地方政府为了经济发展,哪把环境污染和百姓生活放在心上呢?
无论是好也罢,坏也罢,那个小村仍然是养育我长大的地方,仍然是父母心中的家园,仍然是姐弟几个共同的根。作为村里第一个因为读书跳出农门的人,迄今为止的最高学历拥有者(十多年过去了,还没有人超越,估计几年后也不会有人超越),被村里很多人说女孩读书无用(嫁人后也是别人家的)而劝父母不让读书的人,虽然我远在千里之外,父母也早已脱离了农村的生活,但是我家甚至我和弟弟的举动、发展还是被老家人时常念叨。好多年回去一次,也是一天半天的,但是路上遇见的人一听是我(多数是不认识的,听旁边的人讲的),就开始夸赞起来,很是羡慕的样子(最多的是夸父母有能耐、辛苦和福气吧,供应出了一个读书人,带着姐弟几个逐渐跳出了农门)。
在老家人面前,我别的没什么可以讲的,唯一可以自豪的是相比很多老家的同龄人,我可以有稍微多点的精力帮扶姐弟、孝顺父母(当然,也不是说他们这方面不好,只是我自认为可以做的多点而已)。
去年爸爸心肌梗塞时,妈妈哭着说老家的谁谁就因为或是没钱或是抢救不及时,年纪轻轻就走掉了。
单位的领导听说爸爸及时抢救过来,给我讲了她心中永远的遗憾(她爸爸也是因为这个病在送医院的途中走掉了),她说:当时自己刚刚毕业工作,治病的钱还是有点,就是没有也会想办法,可惜没偶尔刻重视(老家农村医疗水平也有限),延误了时机,再后悔都挽救不会来啦;现在自己有钱有权,条件算是很好啦,父母如果双在能享自己的福的话,那会是怎样幸福啊!
昨晚陪女儿去弹钢琴时在琴行浏览杂志(平时很难偶尔间和精力去看这些闲书啊),看到一句很有哲理的话:在中国,很多事情是情通理顺,情通了,很多事情就好办了。很符合我现在的心境啊!
晚上和老公讨论父母盖房的事情,老公又重复了N年前就开始时常念叨的话:等我退休了,就回老家盖一栋别墅种地!以前,我一听这话,就批判他,按国家法定退休年龄,我们至少还要干20、30年,还有另外一层含义是,我们还有很多事情(换大房子啦,抚养女儿啊等等好多事情),这么早盼望退休,真是堕落啊!
不过,昨晚,老公的话触动了我,我想与其想着20、30年后的事情,不如就把给父母盖的房子当做自己以后养老的地方来看待吧(老公老家离我老家车程半小时),这样一想,就觉得这个房子花20万、30万也行啊,也值得
我高中后几乎都没回过老家农村啦(爸妈从我小学开始就在城里做生意了,后来也买了房子),在老家城市和现在的城市也生活习惯了,父母、姐弟什么的也在身边,也有很多志趣相投的朋友、老乡,每到节假日也是家人、朋友济济一堂,时不时还到处去旅游一番。
但是,当过年时,有朋友、同事回老家,我就在想,我的老家呢?虽然也有房子在,但实在是不方便,也没有什么亲人了(当然还有很多别的亲戚,只是很少来往),每次回去,就好像去远方走亲戚般(吃住在酒店,偶偶在亲戚家吃饭——因为时间短,都是去每家坐坐而已,怕因为在这家吃、不在那家吃的被人背后讲闲话)。
记得小孩一岁时第一次回老家,虽然在老公农村老家住的不很方便,但感觉心情很舒畅(主要是有家的感觉,听着亲戚邻居大声的讲笑就觉得开心);为了方便第二天坐车,我们提前一天去城里住进了酒店,老公在酒店照顾小孩,我去超市买东西,感觉很伤心,虽然回了老家,却因为无奈在酒店住着,好似无家的流浪人般。睡觉时,我忍着眼泪对老公讲,怎么感觉好像无家可归一样呢?!


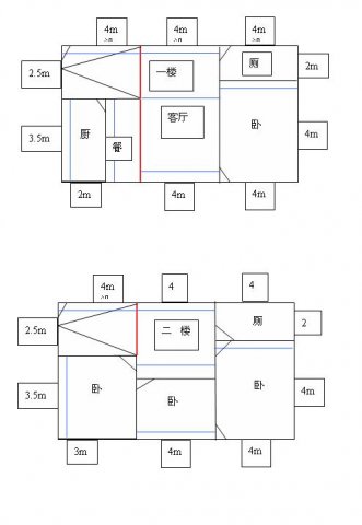
以上是我重新初步设计的平面布局图。
图中红线表示大梁,蓝线表示预制板铺设方向(厕所用混凝土现浇),左上侧表示楼梯间,小斜三角形表示房门。
经确定,家里地基面宽13米,房子面宽按12米设计。
设计原则主要是:总面积尽量小的情况下,保证有4个卧室。
这个房子主要的用途给父母养老用,第二个就是弟弟和我家过年过节偶偶回老家住,过年过节时姐姐妹妹她们偶偶也会去吃吃饭(这就要求餐厅、客厅空间相对比较大)。
考虑成本控制问题,还是用预制板砖混结构。家里的预制板宽度是0.5米,长度只有3.5米和4米两种尺寸,为尽量少架梁,每个房间的宽或深尽量使用3.5米或4米的尺寸。
为便于进入后院,在楼梯间那里设置一个小后门,楼梯间空余空间做洗衣和杂物间。
一楼大门(南向)和二楼客厅(北向)各设置一个阳台(面宽4米,进深1~1.5米)。
考虑到节约成本和分布建设原则,暂时不设计车库(房子南面还有十多米前院,会用围墙围起来,车子想怎样放都行)。
我家和弟弟家十年内最多也只是过年回去几天而已,主要是考虑住的问题,对独立性、私密性不会要求太高,因此在二楼设置一个公共卫生间和一个公共小客厅即可(便于大人、小孩分开娱乐、玩耍的需要)。
总之,这个房子的建设理念就是:在老家给父母弄一个养老的地方,给姐弟几个一个过年过节团聚休闲的地方;在满足当面需要的同时,尽量预留多点地基便于以后增加建设(尽量保留前院的进深多点)。
我和老公都是网上所谓的那种凤凰,这几年虽然是为家里父母和兄弟姐妹们尽了点力。但因为能力有限,年迈多病的父母还在辛苦地操劳着,我弟他妹还没成家买房,小孩子以后的教育投资还需要很多(在GZ这个大城市,优质教育资源很稀缺,为小孩的发展,就要付出更多金钱和精力)。所以,虽然我家的年收入大抵就相当于盖好一栋房子的钱吧,但还是不想在这上面花费太多。毕竟,无论这个房子盖的多么高档、安全、舒适,它的有效生命周期估计就10多年到20年吧;并且,这20年内也只是作为父母养老的去处之一和姐弟几个偶偶过年团聚的地方(可能还不会年年回去)。我相信,如果十年二十后,我或者弟弟家回去生活的话,一定会另外再盖一栋的。这个房子,能满足近年内的主要功能就够了,面积啊、外观啊什么的还真没想要什么要求。作为父母来讲,以我家的各种情况来看,给他们盖一个新房也能极大满足他们的现实需要和心里需求,估计他们也不会有挑剔的(爸爸本来还想把旧房子修一下算了,觉得盖新房不划算,是妈妈想要盖,我才支持的)。
另外,我老家村附近就是一个不断扩大建设的工业园和环城高速,很多靠近村外的房子和耕地已经被占了,听说村里面的房屋以后可能也会被占,村里会整体搬迁什么的,许多家都在抢建房子等*迁拆**呢,这个也是我爸妈想盖房的主要原因。虽然我觉得整体搬迁的可能性不大或者说那将会是很多年后(至少20年左右)的事情。但是,如果不盖,父母心里面估计会一直惦记的(以他们的性格,会一直埋在心里不说),会有不好的心里作用吧。
综上总总,无论怎样,我还是坚持按“基本的安全标准、经济实用的原则”给父母盖这个房子吧。
找一个为自己以后养老做准备的理由,是个自我心里安慰吧,这样花起钱来可能会大方点、爽快点。


9次方案改下来,我改不动了,2 找了一个设计师帮我重新设计平面布局图,这个设计师的设计费还比较便宜啊(平面图几百元),效力也很高,昨天才委托的,今天下午就给我初步的图纸啦。可能他们做这个图纸只要几小时而已,但却包含着很多的专业知识(布局合理性、实用性啦,建筑方式、结构啦多方面),以我的精力和专业知识,实在是不能胜任这个工作啊,只好请专业人士出啦!
我给设计的原则主要有:
1、总面积尽量小的情况下,保证有4个卧室,两层结构。
2、考虑成本控制问题,还是用预制板砖混结构。家里的预制板宽度是0.5米,长度只有3.5米和4米两种尺寸,为尽量少架梁,每个房间的宽或深尽量使用3.5米或4米的尺寸。
3、在保证通风、采光的需要下,尽量少用门窗(便于节约成本、防盗——房子在5、10年内估计会一直空置,只有过年或寒暑假时偶偶有人回去住,对房屋的安全问题有点担心——听说老家都有偷盗别人房子门窗的事情发生)
为提高效力,我已经先把初步设计的图纸带回老家给父母去看了,然后结合父母的想法和各位朋友的建议再请设计是更改下图纸。
我一直希望这个房子按古典的中式风格来建,特别喜欢那种徽派建筑风格,也跟父母讲过,他们说那种估计造价更高。
这两天,去粤北考长途了,几个小时时间内,我不断观察沿途的建筑,可是,大大小小、新新旧旧那么多房子,竟没有一座让我感到好看或目前一亮的,主要原因是这些房子的外观、用料都是按城市的流行去做吧。
晚上在酒店住宿,伙伴们都对酒店大堂、楼梯转角等位置摆放的根雕花架、茶几赞叹不已,我也很心动(以前每每看到这种东东就感觉心里很舒服。)
在酒店一楼,也有几幅樟木雕刻的挂件在卖,我问了下价格和产地、工艺方面的东东,感觉还可信,买了一个60厘米左右直径的福字,打算挂在家里餐厅墙壁上好了。
因为工作原因经常出差,接触的一般都是政府领导、大型国企或是比较大的私企,偶偶也会有一些小老板请我们帮忙,发现很多有钱人都喜欢用一个很大型的根雕或名贵实木茶水几来显示自己的品味。
如果这些东东放在一个中式的建筑或是整体都是中式装修风格,那还好说;可是,很多明明全是钢筋混凝土建筑和白色铝合金、不锈钢门窗,软装饰也是比较艳俗的,还要搞一个超大型这样的东东摆在办公室或是会客厅,真是感觉不爽。
我老公也很喜欢那种中式实木风格的东东,可惜,这种东东价格都很高,自己家里不舍得也没条件去搞。
可怜我命苦啊,嫁了一个只会编软件的男人。
平时家里啥事都是*操我**心,大到装修房子,小到给桌子安个固定合页。
这几年,随着小孩长大,家里不断添置了一些书柜啊、书桌什么的,都是那种组合件,为节省安装费和体验DIY的乐趣,都是我自己购买、自己安装好的。
现在有一种感觉:每个建房者在建房背后都有不为外人知道的心酸、迷茫、纠结,是各种观念、风俗、矛盾相互交织、让步、调和的一个过程。
人啊,都有自私自利的一面,特别是涉及自己、亲人利益的时候。
为父母建房,在我看来,现在条件、时机各方面是比较成熟的;在老公看来,或许还未到时候。
我的理由:
1、经济上不太困难:我们有稳定的比较高的收入(我十多万,他二十多万),年底一般还有十多万的奖金;全家户口也在这边了,有房有车(房子基本够住,车子也刚买两三年的二十多万车),房贷很低且只有四年就还完了(一个月只有两千元左右,公积金就够用了);如果不换房和另购车的话,近年来应该没什么大的开销了(除过明年可能要给女儿准备的10万择校费外),一年轻松轻松也可以攒下十来万。
2、父母有建房的迫切需要:老家农村的旧房十多年没人住,现在实在不能住了;老家城里的房子一是比较小,环境也不太好,十年来一直给亲戚在住,父母和我们偶偶回去没地方可住;爸爸前年做了心室支架手术,虽然恢复的不错,但也怕有个万一;弟弟这一两年要结婚,总需要一个过得去的结婚的地方。
3、爸妈给我们带了六年小孩了,虽然一年也给她们一万多的补贴,但她们确实很辛苦(在带小孩的同时还做点小生意,一年也能净挣两三万);现在他们想着以后回老家养老、叶落归根,于情于理,我都想尽量满足他们的心愿。
有些同志们估计会认为我太不尊重老公啦,有点霸道。其实,说真话,我老公虽然赚的钱比我多点,但是论对家庭的贡献,还说不定呢。
他工资虽然高点,但是很忙,加上他就是一典型的只会工作的人,家里大大小小的事情几乎不会操一丁点心,都是我在张罗,外加父母帮忙,偶偶有什么事姐姐也会放下自家的事来救急。
我父母两次住院手术,都是我去签字、照顾的。特别是前年爸爸突发心肌梗塞,我一个人去签字并看着手术的(爸爸怕手术失败、花费多,闹着不做手术,我费了好大劲才劝好)。其实,作为一个女人,我当时也很害怕,希望老公过来陪我。但是,他说刚好要出差,让我自己看着。我听了后,只能强忍着泪水,还故作镇定地安慰妈妈,劝说爸爸,和医生沟通手术事宜,在两个小时内成功做完手术。后来,爸爸在重症监护室住了一周,又在普通病房住了一周。这期间,老公一直在外地没回来,我在上班的同时,又要带小孩,又要时常去医院看望。好在,有妈妈在医院看着爸爸,有姐姐帮我接送小孩,要不,还真不知该怎么办才好!
虽然我没有讲过,但时常在心里想,如果是老公自己的爸爸,他估计就不会出差去了吧,至少不会在手术当时出差,也不会一去一个多周(出差这样的事他自己有一定的决策权)。以前,他妈因一点意外小事故住院,他可是专门请了一个周假回去看望的;他奶奶生病,也专门请了假回去,过世时我也请了年假带小孩和他一起回去了,还给他父母了几千元钱补贴办丧事的亏空;甚至,也按他们那的风俗,让我父母带着刚做完手术不久的身体折腾过去了(按我们那的风俗,我父母是不用去的)。
妈妈继续深入沟通了房子的问题,也给几个正在盖房或刚完房的亲戚打了电话,获得一些重要信息。
1、因为老家一方面经济、社会发展比较落户,另一方面因为老家所在地附近工业园和高速公路不断扩建,这几年几乎家家户户都盖很大面积的房子想等*迁拆**,所以建房的商业化、产业化程度比较高,不需要主人家怎么费心费力;但现代化水平不高,大多都是砖混、预制板结构,门窗什么也是那些比较低劣的东东横行市场,价格很低。具体来讲,带玻璃和纱窗的铝合金门窗仅140元左右一方,红砖只要0.32元一块包送到家,一大车沙才100多元(我们那就是一个化工工业园,紧邻汉江,沙石场很多,价格也很低),小工一天的工钱才70元。我干弟弟家刚盖好一栋400方左右的3层的房子(他家就他一个儿子,本来就有一栋两层的楼房,盖这个房的主要目的也是想等*迁拆**),包工不包料,工钱才花了3万多,总价在20万内。
2、我家盖这个房子,一方面是父母和我们过年时回去能住住,另一方面也有占住地基等*迁拆**的目的,所以不用盖得怎样好,在村里通行的标准上适当提高点就行了。这样的话,盖总面积200方左右的两层房子,15万左右也就够了。
3、爸妈今后十年内估计还是继续帮我带小孩、帮弟弟带小孩,不会真的在老家生活,弟弟估计也不会回老家的;如果十年后回去的话,这个房子一般还是能住的了;不行的话,到时再花点钱整修整修也可以的;如果二十年以后我们退休后回去的话,无论现在这个房子盖得怎样好,肯定还会另外盖房的。
综上考虑,还是按老家当地的建房标准和模式盖个两层的房子,总价在15万内就行了。
这么多年,我充分体会到老家农村有些人“恨人富、笑人贫”、“挑拨离间、搬弄是非、爱占便宜”的思想。
他们一定是看我家应该是不会回去了,就想办法想占了我家的房子和土地。如果父母不在,我们肯定是把这些扔就扔给他们;可是,毕竟父母在,他们也想回老家,我一定要帮他们保留下房子和土地。如果再这样任其下去,估计以后更难收回啦。所以,我才对姐姐说:老虎不发威,当我是病猫啊!建,我们建个新房在那里,大门一锁,看谁还敢随便进去!当然,钱还是我来出,一些事情还是我去操办,姐姐只需要帮助我搞好辅助和后勤工作就行了。姐姐一听给父母盖房,也挺高兴,也积极帮忙出主意。不过,我还给她打了预防针,我的钱基本够用,但也怕万一费用增加,到时就把她家的钱拿一些先去用,到时还给她,姐姐姐夫也同意。他们明白,我不会让他们吃亏的。
姐姐姐夫比较信任我,让我帮他们掌管了一笔钱。前一段时间,有人找我借贷点钱,有比较高的利息。我事先问姐夫他们愿不愿意借,如果他们愿意借,就算他们一份,姐夫有点怕,不愿意借,我也就算了。后来,钱回来了,我就说反正也是意外之财,这个钱就算他们的算了,姐姐很高兴地接受了。
这几年来,我就是这样慢慢处理和姐姐姐夫的关系,也通过自己的努力,改善了父母和姐姐姐夫的关系。
希望,兄弟姐妹互不相认的悲哀事情不要在我们姐弟几个之间发生了。
为使写的人明白,看的人清楚,我分几个方面来写吧。
一、该不该建房
如前面帖子所述,我家这个房子一定是要建的,我也从心底里认可要建,但是这个很简单的事情,在我心里纠结了很久。一是经济所限,二是思想观念问题,觉得自己以后不会回老家,父母也不用回老家了,回农村盖房没必要。通过在论坛里浏览帖子,了解了很多在农村建房的想法、思路等,最主要是真正理解了父母对落叶归根的渴望,期冀自己能为姐弟们提供一个时常团聚的场所,让父母在有生之年享受儿孙满堂、颐养天年的幸福,故此坚定了建房的决心。
期间,也碰到老公的不理解、不支持,有一次因为他一句话而敏感起来,情绪失控,大吼了几句后伤心、委屈地落泪(一家三口正在开车去饭店的路上),以至于不敢和他一起在饭店吃饭了(怕自己控制不住会继续哭,让小孩和外人看见不好),自己一个人走了半小时回家。那次,以前的种种事情历历在目,在伤心、难过之余,更加坚定了建房的决心,无论老公反对也罢,赞成也罢,一定要给父母盖这个房子的。
虽然,在心里已经坚定了为父母建房的打算,但也不能独断专行,让老公难受。那以后,我表面上不动神色,却废寝忘食般看一号房的建房贴,也有幸加入了建房群,了解各种建房事宜;另一方面,通过吹吹枕边风,诉说下伤感(父母过去和将来生活、养老问题该如何解决),展望下未来(以后过年过节、寒暑假可以带小孩回去玩玩),让老公不好意思拒绝,也“不得不”同意建房了。
经过一番折腾,老公终于发话了:要建的话你们姐弟几个去折腾吧,跟我无关,有事不要来找我,我也不管的。
哈哈,我就等他这句话呢,赶紧说:要你管什么啊,肯定不会要你管什么的,你也管不了啊!
打那以后,我就正大光明地大张旗鼓地开始筹备建房事宜啦!哈哈,地下活动变成阳光行动,真爽啊!
二、花多少钱盖房
在决定盖房之初,我大概根据老家那一般的盖房行情准备预算10万左右(没柱子、没圈梁、预制板、砖混结构),但总觉得这样的房子不太可靠(虽然我不懂建房,但总归是经常看见城市那种框架式建房模式)。另外,那时心里也觉得建房仅仅是为完成父母的心愿和任务而已,不太想多花钱。
通过在一号房学习,特别是群里众多热心的朋友的建议和帮助和直言,我认识到可不能按以前的那种盖房方法去弄了,至少要弄柱子、圈梁和楼面现浇。
上面说到我准备接受各位朋友的建议,打算按高点的安全标准去建房。虽然仅仅是一句话的事,我也前思后想了好几天(性格、习惯害人啊!)。因为这样的话,预算就不仅仅是10万的问题了,而是20万、30万甚至更多。前面有朋友说拿出年薪的一半给父母盖房有何纠结的,其实哪知道我的苦啊!我前面已经讲过,这个房子十年内估计父母都不会回去常住的,以后回去常住的几率也比较小,所以花太多钱的话真是有点不值得;其二,虽然我家工资看着还可以,但在GZ这样的大城市真是不值一提,加上我和老公都是那种所谓的凤凰男女,两边父母和兄弟姐妹要照顾,四个老人的养老问题近年来也时时要想想,小孩以后的教育问题也丝毫不敢马虎(心仪的小学的一次性资助费、人情费要十万左右,以后的初中、高中肯定花费不会少),所以没有、也不敢投入太多钱;其三,我家姐弟四个,因为一些原因,这些年来父母家所有的事基本都是我家出钱出力的,偶尔也很郁闷,过后想想也算了,没办法的事;但是,建房这个事,可大可小,可多可少,怎样做才能平衡好各方利益和感觉呢?
三、图纸设计历程
因为建房思路逐渐变化,房子的设计思路也随之不断变化着,按时间、流程及设计思路来讲讲我家图纸设计过程吧。
1、10万预算设计阶段
这个阶段,就是按老家农村那种传统思路去建房(我记忆中的农村建房方式),厨房外设、无化粪池(意味着厕所是农村那种恐怖的旱厕)。但是,盖成那样的房子话,我是不愿回去的(城市生活了20多年了,很不习惯那样的生活),估计老公和小孩、弟弟也不会愿意回去,感觉这个10万花得太不值啦。
2、15万预算阶段
这个阶段,我打算按加柱子、圈梁,增加结构稳定和安全性去做。但是,对于要不要采用现浇结构比较纠结。因为老家村里还没有一家做现浇的呢,这几年很多家也盖房,都用的预制板;还有就是看见论坛里有一个同城的老乡,也是在网友们的劝说下搞了现浇楼面,但因为工人技术、环境条件等方面限制,最后吃力不讨好,钱花多了,折腾了一番,效果却差强人意。
这个阶段,我也只是考虑房间够不够数,能不能满足姐弟两家同时回去后的基本居住要求,对深层次的东东不敢要求,也不想要求,毕竟,预算有限。
3、20万预算阶段
在万分纠结、迷茫、忐忑中,发现了建房的QQ群,也看到群主远方同志写的建群宣言,更兄弟姐妹们为了同一个梦想而激情盎然、互帮互助、坦诚相待的精神所感动,随即像找到娘家一样加入了该群。
看着群里兄弟姐妹们的嬉笑怒骂,感受着他们如火般的热情,更深深为在这样的社会还有这样一群侠肝义胆、仗义执言、两肋插刀,没有地域观念,没有贫富歧视,没有男女隔阂的可爱的人儿所感动。放下了戒备、猜疑、敏感的心思,坦然面对、接受各位朋友的建议,根据自家的情况,最终提高建房预算到20万,建房思路和理念也发生了一些改变。在这里,郑重地、虔诚地向群里远方、高飞、森林、熙妈、闪电、风清及其他朋友们道一声谢谢,因为你们,我的建房路才能走得这么顺畅、顺心、顺利,更充满了浓浓的感动、感恩和感谢。
群里的风水大师说我好运很好,经常有贵人相助,本人对此深意为然!在这次盖房事件中,我遇到很多贵人相助,其中最最最要向大家介绍的就是美丽、善良、聪慧、可爱、勤勉的云淡风清妹妹啦。
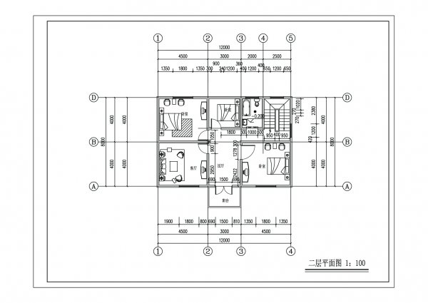
废话少说,大家看看风清帮我画的图就知道她多厉害啦!


一楼和二楼平面布置图

南正面图

北后面图

一楼室内效果图

二楼室内效果图
历时两个月之久的建房图纸终于出炉啦!哈哈哈,我先开怀大笑三声!
对了,我讲下这个房子的设计思路吧。
1、关于面积
因为不长住,因为姐弟四个,因为我和弟弟家以后过年过节回老家都要在这个房子住,所以,为了能基本满足这个需求,房子的面积是一加再加,一大再大,结果搞成现在这么大了,心惊胆战啊,多的何止是面积,是白花花的银子啊!痛哭……
2、关于布局
我的想法很简单,一楼父母住,要有个卧室和大点的卫生间;要有个大大的客厅、餐厅,过年过节时姐弟四家十几口人能舒舒服服地一起看春晚、吃团年饭、包饺子。至于主卧卫生间和公卫就不考虑了,老家那的生活水平和习惯还没有达到那个地步,父母也未必能接受。
二楼,考虑到我家和弟弟家同时回去的话,既要有相对独立的生活空间,又要体验难得的团聚时光,所以二楼房间和客厅的设计搞着现在这种“形分意合”的格局(看起来像两套两房一厅的形式),客厅中间两个虚线只做假门套,不会安门;卫生间也弄成两个公卫的形式,便于使用。
3、关于外观和结构
还是综合考虑成本、当地建房水平和周边房子的情况,这个房子在结构上做成四四方方、简简单单的砖混结构,柱子和圈梁那些肯定是要的,楼面也采用现浇(村里还没人家做过现浇呢,没办法,我家请了三队人马共同搞这个房子);外观上也只能是在当地的水平上稍稍美化下,搞个带柱子的门楼和小斜坡顶,其余的还是传统的那种四方外形和屋顶。
4、关于造价
说实话,对这个房子的造价实在没底,心理也很忐忑、不安,怕超过预算太多,到时就惨了。
不过,根据几个朋友的指点,参考周边地区建房成本,这个房子建完加简单装修估计在25万左右能完成。先完成毛坯吧,看看情况在说,如果资金充裕,就一次装修完成;如果到时没钱的话,就先搞完内外墙、水电、门窗什么的,其余的东东慢慢弄吧。
其实,我有个妹妹在老家城市生活的,但是因为从小和她关系不太好(她是喜欢吃喝玩乐的类型,跟我性格不合);加上一直在外地读书、工作原因,和她也很少联系;还有就是因为一些家庭事情,我和她互相都对对方有比较大的意见,也有点隔膜,以至于我和父母家里很多事情我都不想让她参与。
这次建房,我本来也不想让她参与的,可父母告诉她了,她现在也很积极在帮父母去操办。她家从事房地产相关行业,说是可以给父母弄到一些便宜的建筑材料,根据我对她的了解,我总是心存疑虑。不过,现在她已经以比市场价低了大概5分的价格买下了红砖,也可以节省一点钱了。别的材料,按他们的能力,应该也会弄到比较优惠的价格吧。不管怎样,我希望也相信她这次会为了父母辛苦、努力下吧;如果这样的话,就可以打开父母、姐弟四个心中一直以来的心结,摒弃前嫌,重新做回相亲相爱的好姐弟,让父母安心吧。


28年前,父母顶住经济压力和混蛋爷爷的百般阻拦(要一次性付给他全部的养老费,要不就不给盖房),盖了一前一后两排房子,前面是瓦房,后面是平房,在当时的村里算是比较好的。
几年后,为了供应姐弟几个读书,父母去城市做起了生意,很少回去;但是,过年时,爸爸一定要让全家都回去,虽然很麻烦(要提前几天回去大搞卫生、准备一些生活用品、到年二十九左右就请一辆车把全家及各种年货送回去,过完年后没几天又大大小小一堆人去城里),但父母特别是爸爸一定很开心、满足。很多小孩初一一大早就来家里拜年,大爷大伯的叫着,有些小孩孩被逗着下跪磕头。我小时候不理解,很烦回老家,烦老家的人爱占我家便宜,烦爸爸明知道这些还跟那些人走得很近,现在想想,或许是这些让在城市辛苦讨生活的父母感到一些心理满足吧。
10多年前,爸妈生意突然剧额亏损,老家的人各种谣言四起,以前经常找父母办事的人也不去了,真是应了门厅冷落车马稀的古话,父母再也不提过年回老家的事情了。
后来,在父母和我的努力下,家里经济渐渐好转,老家的人又开始慢慢和父母走动了,连以前跟父母互不相认的叔叔、姑姑家什么的也开始说怎样都是亲兄弟的话了。
这几年,年龄慢慢大了,逐渐明白父母的辛苦和埋在心里的想法,无论怎样,那个小村是他们心灵的家园,是他们以后养老送终的地方。
目前定下的工价是:主体(包括地基、正面外墙砖)工价80元一平方,圈梁和柱子另外加收25元一米,门厅柱子加收1500元;如果和村里通行的方法一样,在预制板上加盖很低的预制板屋顶,不收工钱,如果做成别的屋顶,就要另收工钱,具体根据最后的屋顶做法而定。
我们这有三种屋顶
1、95%以上的人家是石棉瓦屋顶
2、几家是琉璃瓦两坡屋顶,几家是琉璃瓦四坡屋顶
3、还有几家想做厂房的用的彩钢瓦屋顶
听说石棉瓦屋顶3千元左右就够了
彩钢瓦1万多
琉璃瓦2万多




这三个房子是周边村为数不多的用西瓦做坡屋顶的房子(其他房子几乎全部都是用石棉瓦做的),打听了下房子的主人情况,意料之中都是子女在外务工,条件还可以的;但是,房子盖了也是扔在那里,特别是第一栋房子,里面已经成了给邻居存放农作物的仓库,我在窗口看了看,地上的灰层起码有5厘米厚,很久未有人住过的样子。特别提出一点,盖第一栋房子的包工头就是我家的包工头,我爸爸看见这个房子盖得在周边村中算是比较好的,专门打听了下找到这个包工头,原来是爸爸当年同事的儿子,这次在老家,他几次很动情地提到我家以前送过一条很漂亮很聪明的小警犬给他家,他很喜欢,现在十几年过去了,还恋恋不忘,可惜这个小狗养了没多久就丢了。
最后一个房子更搞笑,就在我们村,离我家不远,我每次路过,都觉得这个房子鹤立鸡群的感觉,心想这个房子的主人应该不错。有一天傍晚,我从那里路过,顺便就去看看,谁知一走到大门,看见房子门厅顶上用磁砖拼贴的一个大字,当场就忍俊不禁笑出声来。大家猜猜,上面是什么字?偷偷告诉你,是一个大大的繁体“发”字,就是麻将上的那个“发”。
这个小插曲,我一个人闷在心里,知道不好和父母讲(他们一定不会觉得怎样)。哪知,有一次,在讨论我家门厅以后该怎样做时,爸爸说:以后上面就搞个“发”字。我马上大声说:千万不要那样弄,俗气死了,好难看。爸爸说:那不弄发,弄福也行了,弄个福到了。我不好继续反驳,就没再讲话,想着截至时候再慢慢跟他们讲吧,可千万不要搞成那样。
我父母想做四坡斜屋顶,用琉璃瓦的话价格贵,施工麻烦,包工头建议我们用彩钢瓦做,我有点不放心(我知道这种建材一般用在厂房和临时工房上比较多),想多了解、比较下最后再定。
这几天,和妈妈、妹妹一起去城里一个很大的建材批发市场转了转,初步了解了下各种建材的类型、价格以及一些后期装修用的东东(拍照留存),晚上回家就和爸爸、妈妈三个人召开讨论会,研究建筑施工的东东和后期装修问题。三个臭皮匠,合成个诸葛亮,现场讨论会和头脑风暴会真管用,通过比较、分析周边人家盖房的经验和教训,很多细节问题现在基本有了初步方案。
这几天,再次发现,妈妈脑袋真是聪明,比我都聪明,很多问题一点就透,但就是不懂怎样讲明白;爸爸太主观主义,很多问题都是凭空想象,没什么依据,还固执己见,两个人经常一言不合就气愤起来。我只能在中间当协调人,偶尔开开玩笑批评下爸爸,偶尔故意夸奖下她们,最后综合下他们两个人的意见,说出初步方案,父母都能接受。
关键一点,发现妈妈的欣赏水平还挺高的,我照了很多建材和家具的相片,回来三个人讨论时,我想让他们讲自己觉得那种好,爸爸往往没什么想法,妈妈通常选的和我心里选的差不多,我就故意说:妈,你还真厉害啊,一选就选个贵的,这种是什么什么……
我先说说我们老家建房的样子,主要是不足方面,以提醒自己注意:
1、房子都是砖混结构,多数没柱子和圈梁,楼面几乎99%以上都是预制板结构,周边7、8个村之内才听说有1、2家用现浇的,因为工艺和技术不过关,建房途中就出了问题;屋顶99%以上人家是用石棉瓦做的单坡或两坡屋顶,前面用琉璃瓦做个屋檐遮挡下,很多是在背面不做屋檐,直接把石棉瓦冒出墙体,便于排水。
2、周边几个村沿途都没看见有一家做窗线的,更没有做飘窗的(爸爸想做飘窗),我跟包工头提出要做窗线,他说还没做过,还在思考怎样做才好。

3、很多正在建或刚建人家的平面布局都很不合理,很多基本的东东都不符合。比方用三转楼梯下空间做个小小的洗手间,但另两转楼梯所占的空间都浪费了;有一家人正在盖两间三层的房子,厨房和卫生间一共才占了一个开间和楼梯下位置,一层楼做三个卧室,每个都差不多4*5米大;客厅才跟卧室差不多大,四面还对着两个卧室和楼梯,以后家具摆放很成问题,我跟妈背后说如果他们家四兄妹过年团年的话,都没有地方吃饭,只能把卧室改成饭厅吃饭了;三层楼一共有9个卧室,却只有一楼有个小小的洗手间,以后半夜如果想上厕所的话,还要跑到楼下,小孩子和老人尿急的话都要尿裤子。
4、还没有看见一家做整体橱柜的,很多都是做80年代城市那种突出阳台的一个小小的灶台,上面装两个排气扇,其余的台面就是用红砖和瓷片砌个柜身而已,连门都不装。

5、没有一家做干湿分区的,就算卫生间很大,淋浴和马桶也混在一起,更没有一家有浴缸的。
6、装修水平实在落后,很多人家瓷砖铺贴都不能保证水平面和垂直面的砖缝对齐,门下面没有做门槛石,而是用瓷砖切割拼贴,更可怕的是因为多说是60*60的砖,而门宽至少80以上,就用两块瓷砖拼贴,这样的话,门下面小小的空间就有两块横竖至少4条砖缝,加上没有对齐,非常难看,我看着眼睛都疼。

7、水电安装及其不规范,明装和安装一起上,时不时任意外露的管道很难看;多数人家电线安装虽然是暗装,但连电线套管都没有,就直接把电线沿着砖缝用钉子固定下就用水泥批荡埋在墙体或地面了。
花了一天时间逛了市内最大的建材城,大概看中了一些东东,下面发上来欣赏下。



外墙砖,妈妈想要右上角那种砖红色的,还未想好墙底贴哪种?



地砖和内墙砖,我倾向仿古砖,妈妈倾向玻化砖,干弟弟特意提醒我踢脚线旁边和房间过度的地方一定要贴类似的这种波打线(采纳)。




大门、客厅推拉门、衣柜门,我家以后估计就是这些类似的东东。


客厅镂空隔断、木雕挂画,以后弄点这些东东装饰下。


复合木地板,打算二楼所有房间都用这些东东


法恩莎卫浴系列,价格比较高,一个花洒都要1、2千,妈妈只喊贵。
这两件价格比较亲民,都是2千多,可以考虑下。
打算以后一楼搞个大浴缸方便爸妈冬天泡澡,二楼就搞这种小浴缸和小淋浴房供我们回去使用。


最后来些建材市场掠影,这个建材市场很大,所有建房、装修的材料都有,还有少数家具销售,转一天都转不完。
特别指出最后一张,建材市场里的多乐士专卖店,比较大,我告诫妈妈以后一定要来这里来买乳胶漆,放心(在另一家店里看见了了假冒货)。——补记一句,全村目前仅有一家内墙用了乳胶漆(我曾经的小学老师家),其他人家都是用的“仿瓷”,我都不知道是啥东东。
进入正题

地基整体外观,老地基只有7米深,现在是12米进深,前半部分客厅冒出老地基了(地势比老地基低),刚好可以弄成错层设计。

老地基,先用大石头码一层50厘米高(灌沙),上面卧砌六层红砖(从下到上一次缩小宽度)。以前还担心父母会想着借用老地基,这次发现妈妈比较聪明,坚持重新沿着旧地基开挖所有新地基(包工头还想让我父母借用老地基呢),并且一再在包工头的基础上提高要求和标准。


地基放线:放线当时我不在,遗憾!不过我家房型很方正,比较简单。回来后听妈妈讲包工头是在四边和四角做交叉线(每个位置都冒出1米),以此来检验边平不平行、角是不是直角。看见帖子里有些地方是利用345的勾股定理做的,我想我家这种也是类似的原理吧,包工头建房经验丰富,应该不会搞错,所以我也没去量一下检验下。


开挖地基:全人工开挖,工具是铁钎、铁铲、镢头、铁锤等。沙土地,很好挖,一天就挖了一半,就是有一个大树桩,两个人搞了半小时才弄好;还有就是挖掉一段旧地基,两个人花了2小时都没有弄完(用铁钎翘掉旧地基的红砖和大石头,很难搞)。
我也加入劳动了,帮忙移开影响挖地基的旧砖和挖出来的土,还帮忙拆掉了两段旧围墙。再次发现,妈妈真是比爸爸聪明、有魄力。爸爸老了,病了,脑筋好像变差了,心性也好似低了很多。很庆幸,我好像遗传了爸爸妈妈的优点多点,不像姐姐弟弟好像遗传了他们的缺点多点。所以,我今天的一切,最重要还是要感谢父母。
上面那个穿白外套的有点胖的男人是我家包工头,比我大10岁(可人家小孩都结婚了,我家小孩才不到6岁),是我爸旧同事和好友的儿子,喊我爸叔叔,我父母让我叫他四哥,爸爸偶尔喊他四娃子(老家土话),高兴时喊他儿子。看得出来,这个包工头表面上对爸爸妈妈还挺有感情的,包工单价比别人的便宜一点,三层1.8以下还不收钱,一些小杂活说是免费做,关键一点是能尽量满足父母的各种要求(开始时表哥也介绍了一个包工队,但爸爸跟他提出了一点和农村盖房不一样的要求,他就直接说他做不了,爸爸就不要他做了)
我家钢筋类东东是老公堂哥帮忙去买的(这个堂哥专门建那种小产权房去卖,这几年赚了不少),用他的话说:你家只盖两层,随便做做地梁、柱子和圈梁就够了;我正在盖一栋7层的小产权房,钢筋什么的也没搞多好。
我只能表示无语,也就只能随他做主给我配置钢筋了。他给我家所有地梁、柱子、圈梁的钢筋都配得是12的(听说我们那一般都是这样的型号),地梁和角柱箍筋20*30,圈梁20*20,大梁箍筋忘了(大梁是24*50大小),大梁钢筋是三根25、3根18的。

二十多年的古老的压水井,现在仍然可以使用。
装上电机、无塔水箱,以后就可以用天然自来水了。



盖房的功臣们。

猜猜这个是什么?
在老家几天,每天白天爸爸、妈妈和我分头行动,搜建房的信息、资源什么的,晚上吃饭后三个人就开始讨论房子到底该如何建。
爸爸和妈妈经常一言不合就争论起来,两个人互不服气对方。妈妈很聪明,经常很快就明白对方或讲明自己的思路,爸爸却要啰啰嗦嗦讲好久,偶尔我们都明白了,他还要一遍遍讲,偶尔还要搬来砖头、石块、纸笔什么的做工具,演示给我和妈妈看。
为了说明和计算斜屋顶造型,爸爸自己手工编了个这样的模型出来,还挺形象的,哈哈!


准备做屋顶的瓦片,淘来的旧东东。



屋顶所需要的木材


做屋顶大梁的方管,结实,可以任意焊接成需要的长度,方便。
刷了几层漆。




定做的罗马窗和罗马柱预制件,本人不太想搞这些东东,父母喜欢,也自做主张去定做了,随他们去了







我家的农村建筑工人,最前面是包工头夫妇,我称他哥哥(一个村的同姓,他爸和我爸是旧同事)。
在家几天,发现他们工作时气氛挺好的,有说有笑,经常逗我和妹妹、弟弟买东东,虽然事先讲好给他们饭钱,不管饭的,父母还是经常管他们饭,给买烟酒。
我看他们也就是那个建筑水平,既成事实的不好的地方就不去提啦,只是提醒下他们下一步的注意事项。


我弟弟
房子建筑质量不太好,虽然一再跟父母强调虽然做不成现浇,也要做好构造柱和圈梁。但是,等我回家一看,二楼只做了圈梁,没柱子,我问父母是谁让这样做的,他们都不吭声,妹妹也不敢说话,我只好闭口了。
这次建房,我最终给父母的预算是20万左右,做好主体和门窗、水电、瓷砖,装修的话,等过年后我资金周转过来再说,这些想法也跟他们说得很明白。可妈妈一个劲说,不想花我那么多钱,盖个差不多就行,能管他们住十来年就行了。我爸直接说,反正前面还有那么大空地,以后你们想怎样盖就怎样盖。言下之意,这个房子要按他的想法盖,我也只好随他们去想怎样做了,毕竟,我远在千里之外,如果他们不想听我的,我就是说破嘴皮都没用。


在房子图纸设计、刚开工、建设过程中以及考虑是否发房子建筑图片、发哪些图片等等时候,我曾经纠结过,因为,我知道,我家的这个房子,费用和工人手艺因素,建筑质量肯定会比较差。细节图就不发了,误导大家。现在看来,这些想法还是对了,



上梁,砌墙的工头和电焊工紧密配合,一起完成屋架的主梁焊接工作



军人出生的父母是彻底的唯物主义和不太注重传统习俗的人。房子上梁仪式对他们来说,好象可有可无,我道听旁说地买来红布条和鞭炮。搞笑的是,上梁时妈妈在填围墙边的土,爸爸在楼顶看着,包工头喊要上梁了,没人反应。我慌忙拿出红布和鞭炮,和弟弟两人一起把红布胡乱缠上大梁,把鞭炮抱到楼顶给燃放了。
看着房子的雏形一步步显现出来,我和妹妹几天都是笑着,弟弟却总是一脸严肃和若有所思的样子,这正是我想看到的,我相信,他应该会有一些想法的吧 ,对于父母,对于房子,对于家庭,对于事业。
回家四天,每天马不停蹄地选购各种材料,开始时妈妈和我们姐弟三人一起,初步看了下各种建筑材料,后来妈妈就让我们姐弟三个全权处理了。
妹妹给我们在城里开了两间房,三个人白天跑建材市场,晚上回来就讨论,第二天时,根据父母已经选购的东东和房子风格,画出了房子的大概效果图,然后按图索骥,定购了外墙砖、露台栏杆、过门石、室内磁砖、两层大门、卫浴家具等。另外,找表弟帮忙买了电线,找同村的一个堂姐家定了铝合金窗户。几天时间,好几万大洋就出去了,房子花费的大头基本完成,其余的东东就让父母慢慢在家折腾吧。
我家建房过程中,我时常想着一个比喻,虽然不太恰当,也能表达我的一些想法吧。
建房,好比我给父母买衣服。
以前,我经常以我的眼光,花几百元给他们买一件衣服什么的,他们却不太很喜欢,觉得不值;后来,我学精了,还是拿同样的几百元,在淘宝上给他们买衣服,一件百十元、两百元什么的,今年从上到下,明年从里到外,尽量不重样,父母看着各型各色、物美价廉的衣服,眉开眼笑,感觉挺好的,嘴巴上还一个劲说买这么多干什么,穿到老都穿不完。
如果以我的想法,我去建房养老的话,我可能会用20万建一个小小的、牢固安全的、装修漂亮的平房去住,不在乎面积多大,几层楼;但是,父母毕竟是老一辈思想和眼光,看着村里周围人都在关注这家那家房子盖了几层啊,面积多大啊,万一以后*迁拆**时可能会赔偿多少钱啊,他们也不会独善其身,也跟风似的想盖大点、盖高点。
像买衣服那样,反正是同样多的钱,买一件品牌的是买,买几件A货也是买,他们想怎样买就怎样买吧,反正钱给他们了,就由他们做主了。( ⊙o⊙ )哇哈哈,我真是太有才了,太能胡扯了!






我家卫生间尺寸近乎3*4,我在建房之前、之初以及过程中,不断跟父母沟通各种事宜,特别是卫生间布局,我前后两次发了图纸回去,还电话详细沟通过几次,有一次是连续2个多小时,父母都听懂并理解了我的意思(我爸爸重复了几次让我确认),我以为他们是按我说的去做了(就是城市里很成熟、完善的卫生间布局方式)。
可是,前几天,我看见了卫生间的照片,发现还是按照农村的那种方式和观念去布置的,我郁闷了好多天,没给家里打电话。过了几天,给妈妈打电话,她说水工怎样说怎样说,我气死了,直接说:我给你们说那么多都不听,听他们的,他们一辈子在农村,没见过世面(可我父母和我在城市里生活了几十年啊)!说着说着不知怎么电话就断了,我也不想再打了。
现在,我对房子也几乎不过问,就随他们折腾去吧,就把它当成与自己无关的吧。
我家房子的柱子、窗框以及二楼窗子下面那长长宽宽曲折的白色线条都是买的半成品,好像是水泥和什么纤维制作的。
很多城市都有这种东东卖,有很多花型可以选择,我父母是直接找的厂家选花型定做的,好像所有的这些东东花了4、5千元。
我十一左右发的相片里有,原色是水泥色,用螺丝钉在墙上后刷白的。
为了早日回家过年,顺便帮父母看看房子还有啥需要修整的,特意请了年假,紧赶慢赶地在年二十三(小年)凌晨到了公婆家,休息了几个小时,吃过午饭后又继续开车两个小时到了父母家。
估计父母看我们回来了(事先也知道我们那个时间回去),就安排腊月二十六请客。
本来想着老公和我一起给父母撑撑场面的,可惜年二十五一大早接到老公堂哥电话,他大妈过世了,他立刻带着小孩又奔回他老家给大妈吊孝去,我留下来吃妈妈新房喜酒。
二十六那天,我,妹妹,侄女(姐姐家女儿)代表三个家庭,购置了一小车鞭炮烟糖什么的,在亲友快到齐的时候拉到大院门口,在表哥的帮助下噼噼啪啪放了4挂鞭炮,8个礼炮。
真是庆幸房子的格局考虑到了摆酒的需求,来给父母道喜的亲朋一共来了8桌左右,按咨客的安排,一楼客厅+餐厅+过道一共摆了5桌(重要亲友),院子里摆了3桌(一般亲友)。爱热闹的老爸又搬出来十几挂鞭炮,噼噼啪啪放了几分钟。我在想,父母近十几年的,尤其是建房这半年来的所思所想就蕴含在这震天的鞭炮声中吧。
目前,房子基本完工,就差一些细节需要继续完善,大体总结下吧。
满意的方面:
1、格局基本满意。楼上楼下6个大卧室,基本能满足姐弟四家同时回老家的需要(姐姐和妹妹家应该不会在那里过夜,最多小孩子在那里过夜),二楼大厅格局可以间隔成两个小厅,满足多种娱乐需求(可以同时看电视、打麻将不受干扰);3*4的大卫生间,4*4的大厨房,虽然有点浪费,但过年过节、过什么事时真是无拘无束,也值得。特别是三楼的坡屋顶,不仅成了整个房子的亮点,更具有实用性,家里杂七杂八的东东都可以放进去,特别是妈妈做的咸鱼腊肉,香肠什么的年货挂了一间房;露台晾晒衣物很方便,下雨时可以收进三楼,很好。
2、装修方面基本满意。当初就定位成简装,基本就是刷白了墙壁、贴了地砖墙砖,安装好门窗等,这些基本达到我的想法,特别是门窗和窗帘,是妈妈选的,看起来还行,和房子总体搭配,价格低廉,也不俗气。最赞的是选择了储水式的电热水器,在雨雪天气时不受影响;楼上楼下几乎所有水龙头(包括厨房的)都通了热水管,每天早上就着洗脸盆洗着热水脸,在零度左右的气温下是多么的舒服;妈妈做饭洗碗时也能直接用上热水,不用害怕冷水冻手了。老公最满意的估计是那个大大的洗手盆了,可以直接对着洗头发,我也直接可以在里面洗头洗衣服(比那种幼儿浴盆小不了多少),不用弯腰受累。
3、院子布置很满意。院子布置是父母自己想的,看起来真是简单、美观、实用。门厅两边有大大的水泥场地,还有个洗手盆,有个大大的水龙头接了长长的水管。踏着泞泥回家时可以直接把车开到门厅边,洗洗手,换双鞋,再进门;长长的水管可以一直拉到院门出,洗车很方便,过年在家时老公、我、小孩一起动手洗了三次车,感觉不错。4米宽的水泥路从大厅一直延伸到院门处,不仅看着气派,妹妹家和我家的车,两辆前后停在那里还剩下2米左右的通道,完全不影响行走;到时弟弟也买车开回家,四辆五辆都放得下。
爸爸还把门厅和院子大门两个灯搞成了双控开关,用起来挺方便的。过年那几天,在房顶上挂了闪闪的霓虹灯,一二楼露台和院门处挂了6个通了电的大红灯笼,惹得周围邻居都来大厅在哪里买的,也想买来挂上。
妈妈说爸爸像小孩一样,我也觉得好搞笑;妹妹倒是很听他的话,把这些东东都给他弄回来了(他让我给弄,我是不会给他弄的)。
不满意的地方:
1、建筑质量确实有点差,特别是外墙砖,贴的不好,勾缝更差劲。不过,当地也就那个水平,工价也比较便宜,也只能如此了。像小叔说的,他们见都没见过,怎么会做呢。
2、厨房和卫生间的瓷片确实有点差,样式老了,但当时就冲着省钱去的,就那样了。好在空间够大,看起来也不是太碍眼。
3、院子大门做工太差,原因多多,安装时我在场,吵闹了下,算是出了口气,也只能那样了。






我家房子,空有个架子和壳子而已,做工真是很差,差到我都不想照相片。
但是,儿不嫌母丑,孩子都是自家的好。无论怎样,我想,你与我一样,心里的自豪感和满足感一定比遗憾多吧。
房子建好了,是一个终点,也是新的起点,希望我们的家人从此都能更加幸福、快乐、健康地生活,不要辜负我们的一片心意。
给朋友们汇报下建房后我的生活吧。
在12年底建房接近尾声的时候,为了小孩上学,我买了一个小学初中双学位房,没锅可砸,透支了几万信用卡,心力交瘁。好在,顺利办好房产证、转好户口,小孩也顺利入学了。
然而,6月份注册时学校突然通知取消午托,反复思虑,最后决定凑钱、借钱装修小学位房,便于小孩中午吃饭休息。所以,新的一年年又在折腾中度过,身心俱疲。好在,我小孩很给力,一去就被选为班长,成绩、习惯、性格都不错,基本不要*操我**心,很欣慰。
今年,基本没啥事可折腾,主要吃喝玩乐,修养身心。
回想过去几年,真是不可思议,那么难、那么苦,怎么过来的?
俗话说得好,再大的坎,迈过去就不是坎了。
送给已经建房、正在建房、将要建房的朋友共勉。
尾记:感叹人生如戏如幻,一两年时间,八点档肥照剧的狗血奇葩事情发生在我身上。痛苦,绝望,愤恨,精神几度崩溃,几乎不能正常生活工作,幸好有一帮肝胆相照的亲友一直支持、鼓励、帮助我,特别是在这个论坛认识的高飞、远方两位,从局外人、男人的角度让我多了些理智、现实。
15年9月,我爸在老家突发心肌梗塞,姐弟几个不遗余力、不惜成本抢救,四根主要的大血管,除过之前做的一个支架,又做了两个,把爸爸从生死线拉了回来;住院近一个月,时逢中秋和国庆假期,姐弟几个请假的请假、休工的休工,轮流照看,也算略尽孝心,稳定后出院,等着身体恢复后做另一个支架。可惜,我刚回GZ没几天的一天深夜,妈妈电话说爸爸又犯病了,从家到医院才十几分钟,医生再无回天之术。
该办的一定要办,该隆重的该花钱的一定要花,封建繁复的东西能减就减。在我的授意下,在叔叔的辛苦操持下,整条村所有家户都来参加爸爸的葬礼,接丧礼的队伍足足有七十多人,在近几年村里办丧事的场面中也数一数二了。人不可有傲气,但一定要有傲骨。虽然弟弟没结婚,我们姐妹三个也算为爸爸争取到最后的颜面。同村一个跟爸爸关系很好的大伯,查出癌症,考虑经济因素,没有采取任何治疗措施,就在家干熬着。无论是手术治疗还是办丧礼,我们几乎没有太多计算金钱问题,让村里人刮目相看。
面对村里人遗憾地说,盖这么好的房子,爸爸没享受到就走了如何如何;我虽然伤心,但没有遗憾,不管怎样,爸爸这两三年里也从盖房这件事情上得到很大的精神满足和慰藉,也算安享了几年晚福;我已经倾尽我所能,做到了一个女儿该做的;今后,带着妈妈和女儿健康平静快乐生活,是最大的任务。
往事过如烟云,当时再惊心动魄的事情现在都灰飞烟灭,慢慢真正地理解人生的真谛。奔四了,真快不惑啦!再一次感谢关注关心我的所有朋友。
做最有营养的头条家居号,请保持持续的关注我们!