前些年农村自建房,只要是把老房翻新,盖个两三层的红砖房。不管怎么建,建成什么样,哪怕是丑爆了,都倍有面子。但是现在不同了,农村家家都是自建的小别墅,你得真的建得好看,别人才会羡慕你家,不好看花再多钱,也只是个普通的自建房。
不管是不是攀比,但是追求美是每个人的向往,今天小编给大家推荐了8套农村现代风格的别墅,让你绝对不“撞房”!
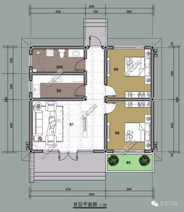
别墅1:9mx 8m
别墅效果图:在建筑造型上,没有拖泥带水的的装饰,一切以“精、简”为调性,小巧简约低调,适合三口之家建造。

平面布局图:布局经典合理,无浪费面积,前后入户门,南北通透,居住舒适; 考虑到室内面积问题,故没有单独设计餐厅,可在入住后在客厅合理位置,自行摆放餐桌椅。

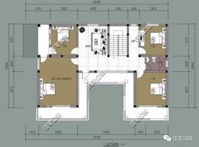
别墅2:12mx18m
别墅效果图:清新温暖的建筑立面配色以及简洁流畅的建筑线条,传达着乡村悠然富足的生活状态;大面积门窗,将美丽风光引入室内,畅想生活与自然的和谐关系。

平面布局图:在室内布局上,根据建筑形态,着重设计出了私密性较强的起居空间;一层客厅、厨房、餐厅之间相互独立,卧室、储藏间都有独立通向室外的大门。

二层阳台连通,形成室外空中走廊。

别墅3:11mX13m
别墅效果图:建筑主体采用冷暖色调混搭,多元化的色彩搭配更显现代生活的气息,时尚感十足;在功能上,多功能开发了房子的用途,注重居住者的生活舒适度。

平面布局图:别墅东边的出入大门不经过卧室直达餐厅,既方便客人自由进出,又能保留私人空间的独立性。

上下的主卧室都自带独立卫生间,为居住者提供极大的便利。

别墅4: 13mx14m
别墅效果图:这是一栋既传统又现代的自建别墅,别墅立面外观秉承开放的现代风格设计原则,室内布局却极具传统理念,将农村的传统生活习惯融入其中。

平面布局图:别墅设有堂屋,并拥有独立的进出大门和入户平台;

注重储藏空间的营造,每层均设有储物间,细心收纳农村生活的琐碎。

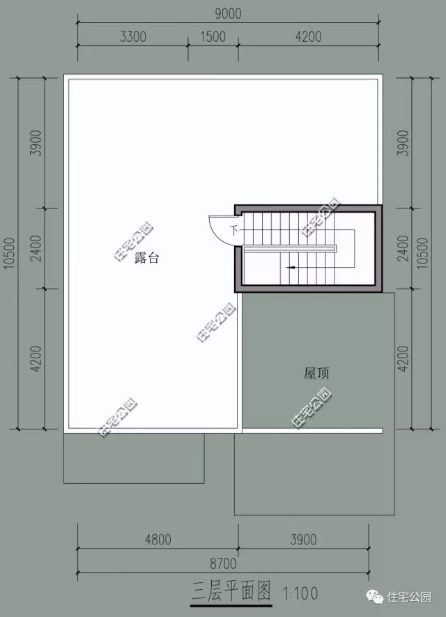
别墅5:9mx13m
别墅效果图:去繁就简,建筑立面是无多于粉饰的现代风格,室内布局为两室一厅,控制造价,经济实用,适合小家庭建造。

平面布局图:别墅格局区域划分明确,一楼起居空间 ,二楼休息空间,三楼露台。

楼梯照样放在中间位置,这样二楼面积最大化利用,二楼遮阳大露台也方便晾晒,休闲。

三层大露台,满足观景、晾晒需求。

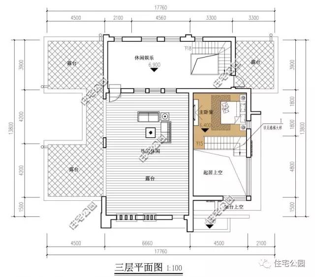
别墅6:15mx19m
别墅效果图:不拘泥于固定模式,这套现代别墅诠释着一种对生活创新的精神和时尚的态度。别墅为现代风格,多变且不对称的线条美勾勒出自由开放的空间形态。

平面布局图:别墅的空间面积较大,因此在布局设计上,更为注重品质感与设计感; 一层设计细腻高贵,拥有挑空客厅、吧台,旋转楼梯等提升空间气质。

二层的主卧室是一个拥有独立起居空间的loft设计,下层卫生间、衣帽间、小客厅,楼上卧室。独特新颖,使用性好。

三层超大露台等休闲区域,丰富业主一家的生活起居。

别墅7:12mX11m
别墅效果图:这套别墅的设计着重考虑到更为注重生活起居品质感的年轻一代,现代感十足的几何形别墅外观,独树一帜,强调个性。

平面布局图:虽为现代别墅,但也延承了农村的风俗习惯,特在一层设计了神位;

室内布局注重空间阔度的营造,尤其是起居空间,一层二层都做成了南北通透,视野好,房屋落成后软装可塑性强;

三层少有卧室,但是作为房屋最高,远离居室,因此可以作为休闲娱乐场所,多露台设计,既可以作为晒台,也可以独立打造成屋顶花园使用。

别墅8:13mx14m
别墅效果图:别墅为现代风格别墅,几何形建筑外观,线条精简流畅,有独立的开放式车库,超大的落地门窗;在室内布局上,注重居住舒适度与空间面积的黄金比例,居住体验感佳,空间阔度好。

平面布局图:非常注重房子与外部环境的整体协调性,精心设计了花坛,搭配实用的车库;卫生间采用最新的干湿分离设计,保持室内洁净卫生。

二层的居住区,除了卧室,设有书房和娱乐厅,丰富居家生活,让人身心愉悦。

你觉得哪套最适合我们农村呢?
微信公众号:住宅公园,500套别墅图纸,别墅庭院设计施工。