农村盖房子主流结构是什么?砖混,这种用红砖水泥砌筑而成的房子,在农村的地位是相当高,基本上所有的农村家庭都住在这样的房子里,优点明显缺点也明显,最大的缺点,就是不抗震,若是在地震多发的省份,还是少盖这样的房子。

与之相反,轻钢别墅,却因其良好的抗震性能与快捷的施工速度,成为农村住房中的一匹黑马,虽说造价略贵,但是安全性没的说,而且房屋性能远比砖混结构高得多;今日就以一家河北施工队案例为指引,来看看好处这么多的轻钢别墅,到底是怎么建成的!
效果图展现:

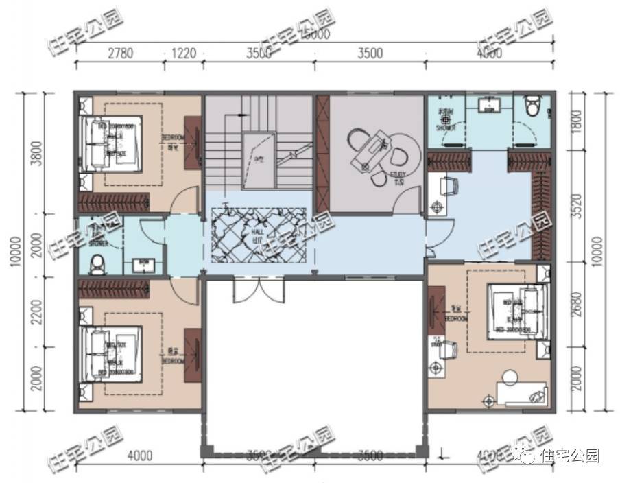
平面布局图:
首层空间在入户门的位置做了缓冲空间,室内主体布局按照功能用房与居住空间搭配的原则进行了划分;东西两侧两间老人房的设计,解决了家中年长之人生活不便的问题!

二层三间卧室满足了居住需求,过厅与外向露台相连,出入方便;整体居室简洁大气,很是经典!

轻钢结构的施工,重点在于搭建安装,将所需的各种龙骨运输至施工现场,按照图纸所示进行搭建,以构成房屋的骨架!

结构欧松板堆放在角落里!

施工图解:
别墅以大板基础进行施工建造,平整场地开挖基槽红砖砌筑基础墙,回填平整后安装模板绑扎钢筋浇筑混凝土,并在混凝土表面覆盖一层塑料薄膜进行洒水养护,硬化完成后,拆模处理即可!

根据图纸施工,按序搭建轻钢骨架!

龙骨与地面的接触部位要垫上防水卷材;同时为了提高整体的稳定性,我们需要镀锌螺栓跟扁形钢带,进行固定!

外墙选择结构欧松板进行订装,接着在欧松板上铺设单向呼吸纸,起到防潮作用!

自下而上进行欧松板的订装,屋顶也不能落下!

别墅整体造型已经初具效果,接着外墙装订挤塑聚苯板,提高房屋的保温性能!

外墙挂板已经安装完成,接着将预留出来的窗户位置,采取在墙体件上铁件上按紧固件打基孔,然后用紧固件固定。

外墙都已施工完成,屋顶处理也不能落下,在轻钢龙骨上方按照要求装订欧松板,然后再铺设一层沥青瓦!


完工后的屋顶看上去更加漂亮:

室内楼梯安装:

先在外墙封板上挂瓦抹灰,然后下部喷涂真石漆美化,上部则采用外墙装饰挂板,如此,一个现代风格的轻钢别墅基本就成型了!

侧面图看的更加清楚:

这样一栋二层别墅,占地面积15X10米,造价40万;整体性能稳定又舒适,冬暖夏凉低碳环保;90%的建材都能回收再利用;抗震性强又稳固,远超砖混结构数条街;这样一栋房子,不仅村里人喜欢,就连城里人,也很乐意在老宅地上盖,毕竟这么实用的房子,错过可就没有了!

这样一栋实用又好看的轻钢别墅,你是不是也想回乡建?

微信公众号:住宅公园,500套别墅图纸,别墅庭院设计施工。