公号热搜内容 阅读至文末查看
湛江市第一中医医院搬迁改造项目场地位于湛江市赤坎区寸金路2号,为原湛江中心人民医院旧址。项目初期规划床位数1200张,中期床位数达到1500张。现状场地内部高差较大,周边交通关系复杂,保留建筑改造困难。设计结合中医“调和以致中和”的思想,以“万象致中”的整体协调理念处理内外场地、周边交通、新旧建筑、医患人群等方面的关系,营造环境舒适、医患和谐、整体融合的现代生态中医医院。
基本项目信息
项目名称
湛江市第一中医医院搬迁改造项目
设计单位
广东省城乡规划设计研究院
设计时间
2020年
竣工时间
预计于2022年完工
用地面积
21833.36平方米
建筑面积
103316平方米
床 位 数
1200床(远期1500床)
结构形式
主体钢筋混凝土框架—剪力墙结构

鸟瞰效果图

主入口人视效果图

东侧入口人视效果图

新建综合楼大厅效果图

1号楼大厅效果图
场地之象
分级处理,弱化高差
因为基地现状为台地,东西高差约九米。如按传统地下室开挖方式,必将带来大量的土方开挖量,投资较大。设计结合南侧寸金路的现状标高情况,将场地分成两大高差台级,利用错层连接的方式减少土方开挖量及基坑建设量,节省成本。
规划中以人的视角作为分析基点,注重考虑环境中的使用人群对场地环境的感知印象。主入口广场的台阶的设计,弱化地势高差所形成的视觉压迫感,并营造出独居特色的景观空间。室外扶梯及电梯的设计,最大可能消减因为场地高差带来人行流线的不便。

交通之象
入口优化,车行疏导
场地西侧及北侧紧邻文章村居民区,仅有东面及南面面临城市主要道路。场地周边学校较多,寸金路作为市区的东西主干道,交通流量较大,该处为上下班高峰期易拥堵路段。规划中通过交通测评,科学预测背景交通量和项目诱增交通量,并通过测算验证场地交通入口的合理性。
结合交通测算分析,规划中车行流线在紧邻寸金路一侧采取东进西出的单向流动方式,尽量减少对周边公交站及非机动车道车行的影响;在农林一路设置车行出入口,将部分车辆适当朝农林路引导,可减轻寸金路的早高峰期车行通行压力。
本项目新建综合楼地下车库设置550泊机动车停车位,满足近期停车配建要求。地下室层高设计为5米左右,并预留了供配电及防排烟等设备条件,未来增设机械停车设备后,整体机动车停车位数量将达到700泊。

总平之象
呼应场地,顺势而成
规划综合考虑新建塔综合楼与原有建筑及场地道路的关系,整体布局顺应场地的肌理。对场地范围及周边环境进行分析,在保留的原有建筑基础上,根据场地红线及退让道路关系情况在场地西侧规划新建综合楼。在三栋楼的中间交汇位置,退让出面临寸金路的南侧文化广场,形成舒适的入口广场空间。
新建综合楼的塔楼采取窄进深的塔楼形式,主体与原保留的1、3号楼平行,西侧局部与寸金路平行,形成沿主要道路的特色形象展现面。中间弧形连廊的设计,将新建建筑和保留建筑紧密联系在一起,并可穿越场地延续到场地东侧的寸金文化公园,形成丰富的半室外共享空间。

功能之象
健康人群、内科人群与
外科人群分区分流
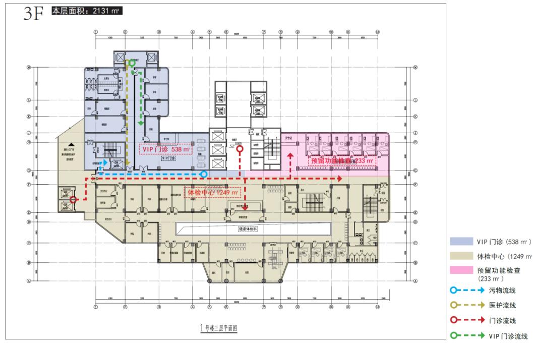
以人为本, 避害趋利。规划中考虑中医医院的治未病、体检等健康人群的特殊性,以及内科病患人群与外科病患人群的病症差异,为有效避免不同人*交群**叉感染,将中医疗养康复病区设在3号后勤楼,与医护人员共用入口;1号楼规划为内科楼,有相对独立对外的出入口;新建综合楼规划为外科楼,与医技功能联系更为紧密。公共连廊及1号楼西侧裙房的加建电梯的设计,可有效重新组织起两栋住院综合楼的门诊、医技及住院流线关系。
三栋建筑人群定位不同,功能分区明确,流线高效合理。

形态之象
方圆结合、刚柔融合一体
建筑整体形态上,通过柔和的线条将几栋建筑连接起来,并与场地相契合。三栋建筑塔楼如一组乘风起航的巨轮,底层裙房如起伏的波浪,上面的塔楼如飞扬的巨帆,整体形态端庄且具偶尔代活力。外立面传统窗花形态的木色遮阳格栅和现代仿坡屋顶的造型设计回应了雷州半岛的传统建筑风貌。整体形态体现了湛江海洋地域特色及中医文化特色。
自然之象
五感融入,五行不息
规划中着重通过场所精神的营造,创造具有浓厚空间氛围的建筑空间。规划引入中医文化中的阴阳调和,五行循环的理念,分别规划金、木、水、火、土、金五行主题广场。通过细部景观小品及植物搭配的设计,着重突出环境所带给人的形、声、闻、味、触等五感,营造具有文化特色、共享精神、休闲舒适的空间氛围。人在医院,可以感知四季,领略生命的气息,并以乐观的心态战胜疾病。

环境之象
轻薄体量,生态花园
建筑的主要功能房间面向南侧,最大化利用自然采光。轻薄的塔楼形态便于通风采光,窄进深的病房形式适合湛江亚热带的气候特点,有利于平时的日晒杀菌,这也是新冠疫情下的设计新方向。海绵城市的雨水处理系统规划,有利于充分利用自然水资源。屋顶花园和垂直绿化、透水铺装的设计,有利于营造良好的绿色生态环境,并与场地东侧的寸金公园生态景观相融合。

空间之象
中式传承,舒适感知
建筑室内设计以“创新中式传承”为设计概念。设计中提取了传统中医文化元素,以现代简洁的设计语言进行表达,创造现代舒适的中式风格空间体验。设计中注重室内空间的美观性与实用性的平衡,主要空间设计上选用了浅灰色的地面抛光砖,米黄色及深木色的装饰墙面,搭配乳白色的天花,整体色彩明亮温馨,体现出空间的静谧与祥和感,符合中医文化所提倡的和谐统一。局部增加绿色及蓝色作为点缀色,这两种色彩分别象征着植物与海洋,可以起到活化空间氛围的作用。

医疗工艺之象
高效流线、人性化细节
医疗工艺流程的设计紧密结合现代医院的院感控制要求,既提倡医护与病患的分离,也创造相对开放的公共空间促进医患交流;既注重功能的实用紧凑和流线的高效可达性,也注意到人性化的空间细节设计。
平面设计中,重点梳理了人行流线及物品流线。人行流线包含健康病人的康复疗养流线,一般病患的门诊、住院流线,特殊人群的发热、感染、急诊急救流线,以及医护、办公人员的工作流线。物品流线主要包含药品进院流线、煎药送药流线、污物流线等。
设计中模拟了不同人群从入院到出院的全过程场景,如门诊人群从大厅到前台问询、乘坐电梯、候诊、诊疗、缴费、取药、住院办理、填单、住院、出院办理、候车、出院等系列场景,通过细部设计回应人在各种场景中的空间细节需求,体现人性化的设计理念。

项目设计前期,因为场地高差现状、周边交通条件、城市空间形态、现存建筑空间特点等多重条件限制,给项目设计带来较大的困难。基于项目定位和医疗功能需求,设计团队通过一系列的创意构想,对现状问题进行消解并加以利用,设计出契合现状条件的特色中医医院,体现出全新的现代生态医院设计理念。
设计人员名单
项目负责人:王晖、黄欣、颜会闾
建筑专业:王蕾、邬明初、唐熠斓、钟寿岸、黄元璞、吴书昊、郭俊杰、陈浩生、任俊安、李泽贤、何龙、刘玉娇、吴劲松、陈祚衡、陈剑波、王志超
结构专业:邹恩葵、黄俊、田小霞、何熹、王燕燕、吕志刚、陶礼龙、雷永杰、林斌
给排水专业:张志坚、苏伟、呼书杰、钟健、徐贤标
暖通专业:袁小华、丰燕、谢建勇、降博睿、何佳泽
电气专业:张庆晖、吴校军、吴小虎、邓博雅、陈文国、孙恩泽
装饰专业:吴享辉、黄滨浩、彭芝
景观专业:王德霖、吴泽鹏、朱文鑫、尹智毅
造价专业:何洁
笔者
王晖、黄欣、颜会闾
单位
广东省城乡规划设计研究院
广东省城乡规划设计研究院近期项目案例:广东省中医院二沙岛分院(改造);广州中医药大学紫合梅州医院;蕉岭县人民医院;蕉岭县中医医院;梅州市妇幼保健计划生育服务中心(梅州妇女儿童医院);南雄市中医院、妇计院异地新建(医共体);蕉岭县妇幼保健计划生育服务中心;喀什地区第一人民医院疏附广州新城院区(改造);桂平市人民医院农机大楼等。
欲知更多关于建筑设计方面的内容,欢迎9月19日-9月21日齐聚深圳,共赴“第21届全国医院建设大会暨中国国际医院建设、装备及管理展览会”。

END
热搜内容
|
深度报道 |
手 术 室 |
国内案例 |
国外案例 |
|
筑 · 作 |
医建风向标 |
医家之言 |
大咖分享 |
|
青年医建圈 |
物流系统 |
医疗养老 |
企业风采 |
|
大湾区医建 |
传染病医院 |
绿*医色**院 |
抗疫手册 |
