工作若干年,终于在去年新房子交房了,虽然不大(建筑面积87平),但毕竟也是有自己的窝了,装修的话也是人生头一遭,今年终于装修告一段落,写个较为完整的装修经验贴,供值友们参考。
先放所有干货,再慢慢说装修的历程。
首先贴出毕业照,全部折腾下来花费大约24万,简单风格,感兴趣的值友们可以继续往下阅读,不喜欢的话也不浪费大家时间。
▼客厅,选用了轻巧的小茶几,因为闺女最喜欢在客厅玩,需要经常搬动茶几来创造游玩空间。

▼电视墙

▼餐厅

▼主卧

▼儿童房,家具和床品选用了FLEXA,这个牌子的儿童家具外观深得我心


▼卫生间,选用了汉斯格雅入门的飞雨150,洗起来已经很让我满意了,带下出水,很方便。

▼阳台做了储物柜,因此洗衣机就放在卫生间里了

▼厨房全景,因为基本算是没采光,所以顶上增加了两只筒灯用作辅助照明,效果很好。

▼因为厨房实在是太小了,没有放置微波炉的地方,所以搞了个架子弄墙上

▼烟灶买了林内星际系列套装,颜值颇高,还买了被值友安利的酷彩铸铁锅和山田工业所炒锅,确实很好使

▼ROSLE的厨房五金工具系列一直深得我心,这次趁着装修新房来了一套,手感无敌,使用清洗起来也很方便,强烈推荐


接下来是杂七杂八的图
▼餐厅的厨卫门,以及鞋柜

▼装饰花

▼十分简洁的钟,和装修风格十分搭配

毕业照你能看下来说明我的装修还有救

,接下来是格式取自于值友的EXCEL总表,所有的家装项目,购买渠道,品牌选择以及型号价格都在里面了,供参考。

下面详细说说这次装修的经验,全是自己瞎折腾的血泪史,请值友们轻喷,对于一些楼主比较脑残的地方请大家引以为戒

。
1.前期规划与设计
▼这是房子的户型图

房子建筑面积87平,两室两厅一厨一卫,非常简单粗暴并且常见的小户型。拿到新房过后所要面对的第一个问题就是用什么形式进行装修,关于清包半包全包的概念相信大家已经十分了解了,就不赘述了,因此首先对本地的装修公司以及相关的室内设计师进行了考察,跑了一大圈,折腾了不少但是让我满意的设计却没有(四线城市靠谱设计师真是难找),虽然还有一个方法是找外地设计师进行设计,找本地装修公司进行施工,但是想像了一下感觉不可控的地方还是很多,最终决定下来的是由我自己进行设计工作,找装修公司进行基础装修部分,家具部分以定制家具为主这么一个方案。
拿到新房十分兴奋的我很快就做好了暖气布置,网络大致规划以及灯位规划。
▼暖气布置图

因为是北方,所以还是选择了传统的暖气片,缺点就是暖气片漏在外面不是很好看,所以在位置安排上多选择了窗帘后,门后,桌子下这种不起眼的位置。
▼网络布置图

网络方面,因为家里电子设备较多,自己用PC的时间也比较长,所以选择了有线+无线的方案。家里的网络娱乐中心设置在电视墙处,路由器以及可能要添置的交换机都会设置在电视柜中,因此布局的方案就变成了,入户的弱电箱只放置光猫,从弱电箱走线至电视柜,将光猫和路由器连接,再把卧室以及无线AP的三路网线都汇聚至电视柜。这么做的好处就在于,路由器以及交换机位置合理,不需要在弱电箱挤成一团,无线信号能均匀覆盖全屋,电视柜中网络及娱乐设备能够非常方便的接入家中的有线或者无线网络,只需很短的跳线就可以了。
▼灯位布置图

因为是自己瞎折腾的装修,所以不敢玩什么风格,就是简简单单的装修即可,因此灯位布置的初期方案是客餐厅无主灯,卧室吸顶灯这么一个设计,然而开工以后层高不足的残酷现实将客餐厅无主灯的设计立刻作废。
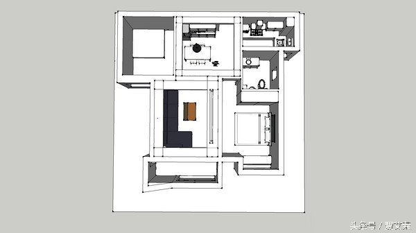
自己决定的事情,含着泪也得给干完。既然自己设计,因此室内设计相关的软件是一定要学习的,经过考察发现大家都喜欢使用Sketchup这款软件进行室内装修的规划与设计,经过若干天的学习与摸索,跟LD深入交换意见后,画了个大致草图,都是初步规划,因此很多地方不完整,最终效果也差的比较多(渣渣画图水平,各种杂乱无章的线,还请大神们指导)。
▼规划整体顶视图

次卧最终才决定如何摆放家具,因此在一开始的画图阶段就没有涉及,规划的重点放在了客餐厅,厨房和主卧。
▼客厅沙发部分规划

图中的沙发,画还有灯都是量了尺寸一点一点画出来的,这样子就能把“自己看上的家具放在家里到底是什么样子”这个问题解决了。
(未完待续)