最近,伴随着湾区各地的楼市收紧措施,卡住众多购房人士;单纯说东莞,一个月前的调控升级,不仅让众多人在购房资格上更不友好,在首付比例上,同样提高了一个门槛。
具体政策要点如下:
1. 非东莞户籍,买第二套房,需4年内连缴3年社保;
2. 离婚2年内再买的,按离婚前家庭房子套数算;
3. 新入户东莞,购买首套房,需有半年社保;
4. 企业购房,需公司注册满两年后才能买房;
5. 居民家庭拥有1套住房且住房*款贷**未结清的,购买普通住房首付款不低于50%,购买非普通住房首付付款比例不低于60%;
6. 对拥有2套以上住房的居民家庭,暂停发放商业性个人住房*款贷**。
这一系列调控,让更多想在东莞置业人的心,逐渐出现产生了变化,从而把目光 瞄向了一桥之隔的"石湾"。

随着东莞北部区域在2020年的补涨,各镇区的房价水涨船高,但仍是1字头,与东莞一桥之隔的石湾,便是不少刚需买家主动“外溢”的购房投资首选之地。
— 惠莞限购新政对比 —

大量客户涌入,量价齐升,是石湾近年来的楼市主旋律。从区位上分析,石湾有着独特地利优势的。这个与东莞接壤、临近广州,规划性仍非常大的镇区,正在凸显自己的价值,低开高走,而这两个城市去年的涨幅,有目共睹。

与东莞超近连接,房价相对更便宜,怎会不吸引?强大的东莞城市能量,正在带动周边临莞洼地价值上升,呈现出跨区域的楼市轮动。

石湾首当其冲受惠,经过东莞人买买买之后,价格也跟着东莞房价慢慢涨起来。这个片区的供货从大范围供应,已进入细水长流的阶段,东莞人杀过去会发现选择空间越来越小。当然了,买入石湾也不是乱买一通,而是要懂得,选择好的片区和好的楼盘!综合来看, 石湾新城镇政府片区必定是首选!

你纠结房子的升值潜力,他更在乎有没有一个家。

在这些热门板块和楼盘中,就有聚龙集团打造的 聚龙·天誉湾 ,落石湾政府旁,坐享一城繁华。那么,这个城芯笋盘又有什么过人之处呢?

☆ 天誉湾三期四期效果图
30分钟 到达莞惠穗
聚龙天誉湾,位于惠州石湾镇,地处广州、惠州、东莞三市的交界,坐落于穗深莞惠四城中轴之上,坐享湾区主城千亿集群配套,承接四城发展红利。

这样一个“黄金地段+发展政策”双重加持的宝藏区域,目前竟然还属于价格洼地,升值潜力非常值得期待!
聚龙天誉湾所在的石湾镇,经济排名博罗县前列,哪怕与惠州重点区域比拼也不落下风。
石湾镇交通设施纵横交错,无缝接驳莞穗深,出行便利带来的发展红利将不断涌现。

东莞莞北镇街,4桥连通,与石湾相隔一江,交通利好,自古以来交流频密,文化与经济早已一体化,让跨城置业不再是梦。

尤其是石龙(石湾大桥,沙河桥)、石排(罗浮山东江大桥),还有石碣(已开通临时通道的红海大桥)等与石湾仅是一桥之隔,东江两岸的价差在新政后的对比下,更促使东莞区域客户大幅流入石湾置业。
自带幼儿园+小学初中直升学府
石湾镇区规划呈组团式布局,形成“二大片区、一个组团、三条发展轴”的空间结构形式;
项目择址石湾政府旁,落位城市价值热土---新城中芯,地属行政中心板块,只能感叹天誉湾的缔造者们提前布局,尽占城市红利。

说到教育,不仅是物业价值的保障,更是孩子的锦绣未来基石。
天誉湾三期配建约2400㎡9班制幼儿园,同时与师承北京师范大学的京师荟成学校,仅一路之隔,与东华学校(石排生态园校区)等名牌学府为邻。

约95-117平三四房
自住、投资不二之选
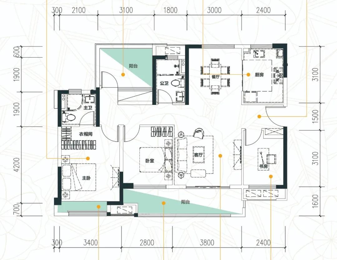
建面约95-117㎡新品三至四房
匠造市场臻稀N+1优拓空间户型,加以2梯4户的尊贵设计,产品为建面约95-117㎡三至四房,南北对流采光与通风俱佳,户型方正实用,望园观景。
01 建面约95㎡三房两厅两卫
三房设计,两个卫生间设计,适合三代同堂家庭,避免了生活中的不便。

☆ 建面约95m²三房两厅两卫
采用餐客一体设计,双厅联动,一气呵成,利用餐客厅互补的空间和视野,搭配南向阔景阳台,在功能独立的前提下共用空间,兼具明亮与开阔的空间美学,轩敞大气之余,更显人生雍容。

多卧室朝阳,南北采光充足、动线合理,干湿分离、动静分区,卧室宽敞明亮,温暖阳光唤醒每一天。

02 建面约117㎡四房两厅两卫
布局方正,没有多余浪费空间,整体动线明确;客餐厅一体,与观景阳台一线连贯,阳光清风收藏入室,生活空间宽敞明亮。

☆ 建面约117m²四房两厅两卫
客厅、餐厅、厨房无缝相连,U型烹饪动线,高效节省空间,烹饪效力更高,奢阔客餐厅,无论是宾客登临,还是亲友相聚,盛餐招待、品茶闲谈,奢阔气度在双厅之间流转。

精致的生活,就是享受私密空间带来的仪式感,设计阳光飘窗,通风采光优佳的尺度成就一方自在天地,阔绰尺度,打造独立衣帽间,完美收纳琳琅满目的衣饰,给予主人完美的居住舒适感和安全感。

全新板房开放
建面约95-117㎡9栋新品
诚意登记火热进行中
凭地段就可以躺赢,但是偏偏要靠实力,这也是为什么,聚龙天誉湾一面世,就迅速红遍全城。
买房需要审时度势,东莞房价一路上扬,现在买入容易高位站岗,而石湾这个洼地则开始在回暖,或许,现在是东莞人把手伸出去的一个好时机。
聚龙天誉湾

全新板房开放
建面约95-117㎡9栋新品诚意登记火热进行中
垂鉴热线:0752-6318222
地址:大湾区·石湾政府旁
免责声明:
本项目推广名为:聚龙·天誉湾三期,注册名为:聚龙汇景湾,开发商:惠州骏耀房地产开发有限公司;
本资料仅为要约邀请,不构成出卖人的要约和承诺,买卖双方的权利义务以双方签订的《商品房买卖合同》及其补充协议为准;
相关宣传内容不排除因政府相关规划、规定及出卖人分期规划、未能控制等原因而发生改变,如有更改、调整,恕不另行通知,敬请留意最新宣传资料。
活动最终解释权在法律允许范围内归开发商所有。