
▲凤凰谷山顶艺术中心效果图
顺势而为

▲凤凰谷,金山岭景区与白草洼国家森林公园之间的谷地

▲层峦叠嶂,如同水墨长卷

▲金山岭长城烽火台
位于北京与承德交接处的滦平县,毗邻白草洼国家森林公园与金山岭长城景区的山丘之上,是我们决定这座建筑所诞生的地方。在山头高点上极目远眺,层叠的群山连绵,浓淡相宜。天空高远,无边无际,一如一副磅礴的古典山水长卷。上溯三千年,正是在这样的天地之间,先秦诸子开启了以自然为终极存在的中国古典哲学。自然性与中国性,本身就是一对相辅相成的概念。中国古代的文人士子,多寄情于山水而生出不朽的诗篇。我们在这群山之间营造一座建筑,首先想到的仍是寄之以情,让它仿佛是在群山之间生长出的一个自然造化之物。

形态生成
面对一座建筑的诞生,首先应该审视产生它的场所与环境,这或许和古人所谓的“相地”有异曲同工之妙。建筑不应该是一个凭空生出的人造物,而是建立在建筑师对环境的观察,理解以及想象之上所进行的演绎。这不是一个将建筑“放进”自然环境的过程。恰恰相反,我们想让建筑从自然环境里“长出来”。
视频加载中...
视频:工作模型
当我们站在那条连绵的山脊上时,如何让建筑从此间生长,便是我们面对的第一个问题。它应该属于自然,属于那片山,同时始于“造园”的思考,我们也希望给这座建筑注入一种精神,一种属于中国的古典精神。






我们注重“势”这一概念。势是古人对客观事物的一种感性而抽象的理解方式,是一种方*论法**,涵盖了事物在时间和空间上的演进。山自有山势,谷亦有谷势。尊重这种“势”,不是粗暴地用人工的方法去打断它,而是用建筑的形态去继承和演绎它,依山就势,顺势而为,如此产生出一个和宛如天成的形体。

▲总平面图
功能组织
凤凰谷山顶艺术中心规划建筑占地面积1500㎡,建筑室内面积2600㎡,艺术中心整体范围3500㎡左右。除承担凤凰谷整体开发项目初期销售和展现的功能外,也将承担艺术展览、文艺活动、高端晚宴等多种功能。

▲入口层平面

▲VIP层平面

▲地下层平面
在将不同功能按照动-静、开放-私密等需求做出分区之上,我们重视本设计作为艺术展厅所要求的素雅、开敞的空间调性与流畅的空间游览体验,以及紧凑的建筑面积在不同使用阶段的空间弹性,使其既是一个雅致、精巧、令人流连忘返的美术馆,同时也完美地兼顾了业主对于营销、展现、宴会等多方面需求,在有限的建筑面积上成就了超过建筑体量本身的丰富可能性。








传统与现代

▲“飞檐”这一传统建筑的经典语汇,以现代建筑形式抽象地表达

▲栈道飞垮,曲径通幽

▲台榭层叠,高低相望

▲承自热河行宫烟雨楼的卷棚顶形式被演绎,以重现柔美的山势
凤凰谷山顶艺术中心在形态上寄托了我们对中国古典精神的思考和继承,以及这种精神在现代建筑上的体现。线条流畅的曲面屋顶反映了场地周边连绵的山势和自然形态,与之融为一体;屋顶之下丰富的空间变化则致敬了古典园林中借景、对景、移步换景等经典手法,由此体现与该区域内经典皇家造园典范如承德避暑山庄、巴克什营行宫所组成的“御道文化”所遥相呼应。

▲TEKLA结构模型

▲TEKLA结构模型

▲TEKLA结构模型
凤凰谷山顶艺术中心不仅由内而外富有传统的质感和温度,同样也体现了当代中国前沿的先进建筑技术。除了将参数化应用于设计阶段和施工阶段之外,整个建筑的表皮,从屋顶到幕墙,都严格计算了能耗并设置了相应的保温节能系统。建筑内部采用了智能管理系统,最大化节省能源。整座建筑在完成后将符合国家绿色节能建筑标准。

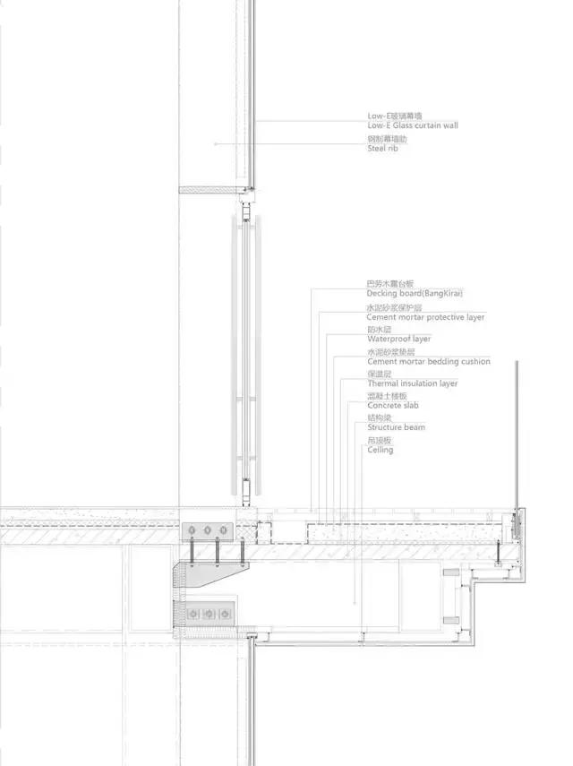
▲屋面构造图
在传统的手工筒瓦与竹席材料吊顶之间,是对现代化的建筑节能技术的运用
对于建筑细部的关注与控制是决定一座建筑品质的关键。传统的精神,应该以现代的方式表现,才会有其源源不绝的生命力。而现代的建筑方式,相对于大面积的材料和建筑技术,简洁、精致而细腻的节点,以及经过反复推敲形成的品质,才是更具决定性的部分。现代化的建筑节能技术,从屋顶保温,LOW-E玻璃到空气循环和热交换系统,不仅使这座使用传统材料作为外表的建筑内里则充满了对环境的关注,同时这些现代技术也确保了舒适宜人的室内气候。

▲立面构造图
山顶艺术中心所有玻璃幕墙全部采用双层Low-E玻璃
施工现场












凤凰谷山顶艺术中心
设计单位:dEEP Architects
项目现状:施工中
总建筑师:李道德
设计团队:吴一迎、周源、蒯鼎、张新源、周璟、刘文墨、张可欣、何宽、马基仁
占地面积:1500平方米
建筑面积:2600平方米
业主:天缘兆业投资集团
甲级设计院:北京市建筑设计研究院BIAD
结构顾问:北京市建筑设计研究院有限公司复杂结构研究院
室内设计:dEEP Architects
施工总包:北京盛世维工程技术有限公司
灯光顾问:北京宁之境照明设计有限责任公司
景观顾问:ECOLAND易兰