
创新公寓
15 Clerkenwell Close
英国皇家建筑师学会(RIBA)的权威评奖赛中,获得 RIBA 2018 伦敦奖、国家奖的混合型公寓楼「15 Clerken Well Close」。

15 Clerken Well Close
这栋大楼位于伦敦,坐落在一座建于 11 世纪的修道院的旧址。从它的外观你能看出来,它好像是一栋还未安工的建筑,其实已经竣工并且入住,几乎全是由原始石头建成的六层楼。

这些外墙上可看到的石头没有经过抛光,尽量保留了原始的状态,目的就是为了捕捉那座古老修道院的建筑精髓。

15 Clerken Well Close 是由 建筑师 Amin Taha 设计的大楼,他出生于柏林,毕业于爱丁堡大学,从事文化、住宅和基础设施的设计项目工作,现在就定居在伦敦。

Amin Taha
这种做法在现如今的设计中并不常见,敢于设计、并且将之付诸实践的案例就更少了。但它看起来实在太粗糙,这是设计师有意而为之,更是它能获奖的原因。

只不过和边上的楼相比,这栋建筑尽管是新建,却反而显得古老而陈旧。

建造这栋大楼的石料,是从英国德文郡的某一处采石场采集而来。这个采石场的石料有着相当悠久的历史,据说和 11 世纪的修道院是同一个时期。

采石场环境
正因其悠久的历史,所以反而能清楚的从石料中看到珊瑚化石、菊花壳、石英接缝等的天然饰面。

工人正在采集石料

石料上的天然饰面

采石场工作场景

施工团队将采集好的石料直接运到建造场地,为了确保石头能保持原始的模样,除了在为数不多的石块外表刻上简单线雕,这期间几乎对石料没有经过任何加工。接着再用起重机将石块运到相对应的楼层,完成结构的施工。

施工现场
这个外立面结构看似简单,实际上却相当复杂。
据施工团队说,他们与 Webb Yates 的工程师有着长达八年的合作,但还是在建造时候不断尝试更合理的工程流程,并且更新了石材结构的制造方法,才得以将建筑建造出来。

公寓楼外立面
公寓楼建筑首先以混凝土材料作为核心筒部分,接着立起数量众多的钢构支撑,开始进行混凝土楼板的浇筑,

以钢条作为支撑
石块并非直接附着于建筑上,而是用钢筋部件将其固定在建筑外表。

连接节点图

安装完外墙石块并与楼板连接后,拆掉这些支撑在楼板之间的钢构。最终将一块一块的石料按照一定的规则和排列安装完成,才形成公寓楼外部彼此支撑、贴合的石块外立面。

连接外立面与楼宇的部件细节
建造出来的效果非常好,而这外立面的建造创新,也同样是这栋公寓楼获得 RIBA 2018 伦敦奖的重要原因。

外立面与旁边的教堂有着相同的历史精神
再来看看这个新建的「旧建筑」,它那充满历史岁月感的外观,如何完好的融入周围环境:

建筑外观

车库入口

花园
当然,这栋公寓楼的室内设计也是非常重要的一环。最一开始,我们说这个公寓楼是一个混合型,也就是说,公寓并非是它的唯一功能。

低区办公

高区住宅
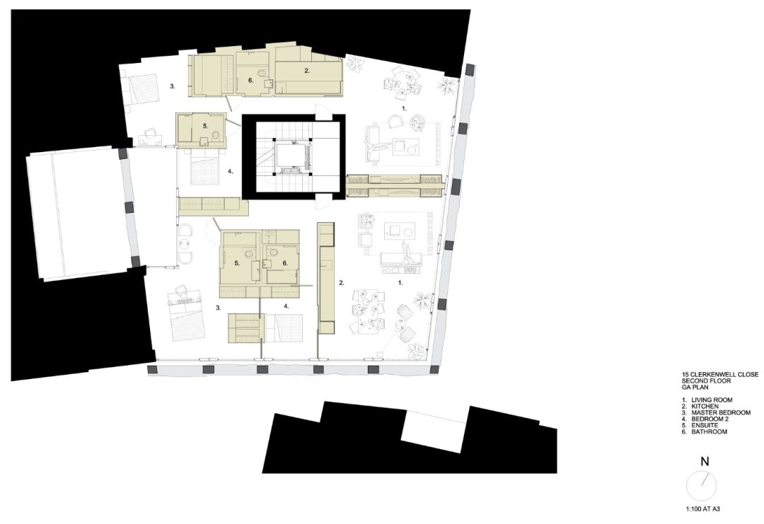
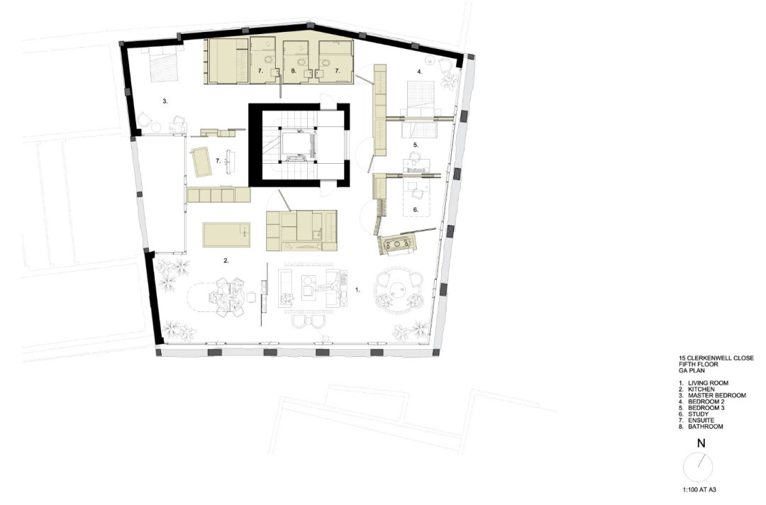
这个六层高的建筑,地下室和一层是工作室,二层到五层则是公寓区,顶层是建筑师的住所。

建筑剖面图、立面图
先来看看工作室的区域,这里的室内设计主要以工业风为主,刚好与建筑外观的粗粝形成呼应。

黑色的钢梁结构在工作室得到了重点的体现,例如会议室的设计就是将其变成一个由黑钢形成的「盒子」,并辅以木头的质感。

而砖墙保留的老建筑部分墙面,则是加重了工业风的感受,这样的设计很适合工作的氛围。

而公寓的室内设计,则与它的外观一样,充满「岁月静好」的感觉,是一种带着些许轻松的风格。
公寓楼曾的外部有着看似未完工的建筑外立面,这与里面新颖的公寓外墙有着极大的反差,形成了一定的戏剧冲突感。

公寓内部的设计,能够看到混凝土天花板和石材材料两者相结合,营造出一种天然的质感,显得那么温和平静。

公寓有着面积极大的落地窗户,这让整个室内的采光效果上升了不止一个等级,而且景观也更加良好,同时也增加室内的空间感。

以材质突出为主的空间氛围,有极简主义的风格倾向。一些比较细节性的材料,例如黑钢和抛光大理石,出现在卫生间区域,又有一种精致的格调。

卫生间的马桶盖都是木纹贴皮的▼

15 Clerkenwell Close 是一栋有温度的公寓楼。
它有着特殊的石结构建筑外立面,以混凝土、原始石料、轻盈木材、抛光地板等元素组成的简洁室内设计,浑身上下散发着一种「原始美学」,有着相当强烈的历史质感。

这种内外反差达到的视觉效果极富戏剧性,也影响了人们进出大楼的心理作用,回到家中会有着不一般的温暖感,也难怪它能获得 RIBA 的青睐了。

☟
设计师俱乐部
中国泛设计行业
专业资讯服务平台
设计交流和跨界合作的桥梁
设计和创意品牌传播的窗口