【小区名称】百商悦澜山
【建筑面积】126㎡
【工程造价】12万
【装修风格】东南亚风格
【装维修念】东南亚是属于热带雨林的气候,该地区所倡导的家装理念,形成其特有的个性,代表着人与自然的和谐相处,房间的整个色彩多以自然的元素为主,承载着这个地区的人们对家的独特理解与感受。

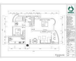
平面设计解析
本案为一对年轻的夫妻,热爱生活热爱旅行,最亲近自然的颜色便是东南亚风格的设计,在追求视觉享受的同时,更多的是空间收纳的规划,喜欢旅行的人都不喜欢被太多的事物所牵绊。


客厅
客厅的墙面用沙石的色彩左右主色调搭配上原木的芳香,和简单的几何装饰形成一幅美丽画卷,在区域的规划上也就单独空出了电视背景墙的区域,如果单独做背景墙,倒显得拖沓了。

餐厅
东南亚风格的整个色彩格调属于清爽,安静的环境,地板不需要太多的花纹,在吊顶及灯饰的选择上,偏向于复古的建筑,融汇着丰富的文化素养。

卧室
独特的户型也成就了这样一个安静的休息环境,而有一个单独的区域用于深夜的畅谈,灯光的效果更像朝霞,让人遐想连篇。

风格代表着一个人的生活态度,有一个家不容易,不要因为一时的简单而浪费了大好的空间。不断追求才能做出更完美的效果。
设计师介绍

首席设计师:唐宋
设计理念:设计是一个沟通的过程,我愿意通过十分的沟通展现出服务生活的设计,换回十分的满意。