在给这户业主量房的时候,哈哈,真心不是一般的让人抓狂啊,好几个装饰公司的设计师在那里,这倒没什么, 也见怪不怪了,主要很多都是小年轻,刚毕业的大学生,这不,我们公司在这个小区施工了几十套了,再加上业主和我一样是一个有点小逗乐趣的人,聊着聊着,很快就成了朋友,装修的事情顺其自然的一路顺过来了。
设计师:龚洁(nczx886)
项目名称:中骏蓝湾9-100X 南昌(工地开放中,欢迎参观啦)
【中 骏 蓝 湾】 设 计 说 明:本 案 的 设 计 为 现 代 风 格, 现 代 风 格 讲求的是简洁、干净、宽敞、光 亮 的 居 家 环 境,它 的 存 在 迎 合 了 当 代 年 轻 人 的喜 爱,消 除 工 作 的 疲 惫,忘 记 都 市 的 喧 嚣,简 单 大 方 就 是 现 代 风 格的 特 点。
主材:地砖、地板、硬包。
室内面积:95㎡
做的是360度的全景图,需要参观报价和方案明细的可以来店里直接看

客厅

平面图

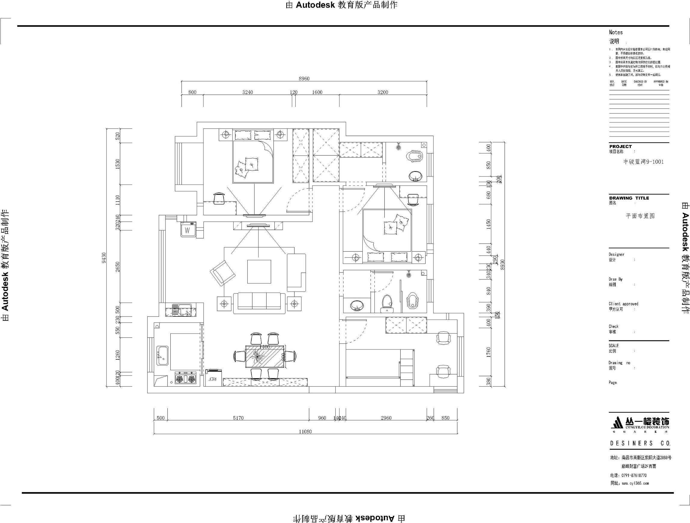
户型图
如果您准备装修,可点开笔者头像进入主页,点击左下方“我要装修”,即可直接预约设计师!
--------------感谢您的点赞与关注------------
※本案例出自“南昌玲子装修”
※码字不易,请尊重设计师的成果,勿盗图!喜欢即可分享微信朋友圈!
装修其实很简单~