南阳森林半岛4期装修案例 2016-4-13
HI,大家好,我是温州好依家装饰设计师李贺,毕业于南阳师范学院,后去深圳好来居设计院校学习,就职于温州好依家装饰公司设计总监,国家注册中级室内建筑师。主要擅长风格欧式、中式、现代、新古典。南阳代表作品有:内乡别墅、森林半岛3期、森林半岛4期、城市天地、贵州茅台习酒等。今天为大家带来森林半岛4期170M²时尚之家案例赏析:
温州好依家装饰一一170时尚之家一一后现代风格混搭
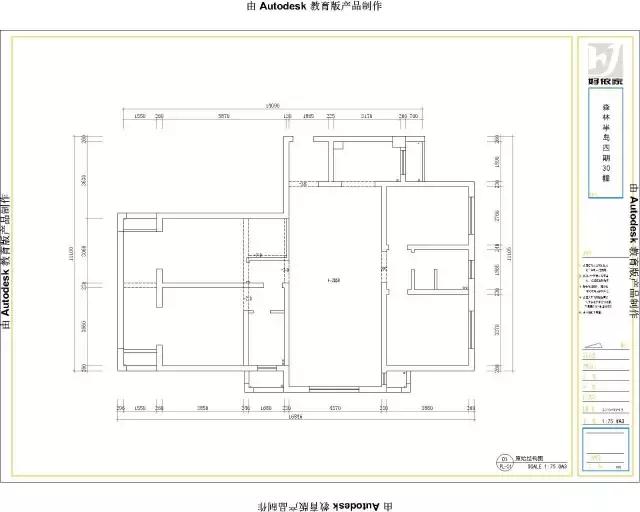
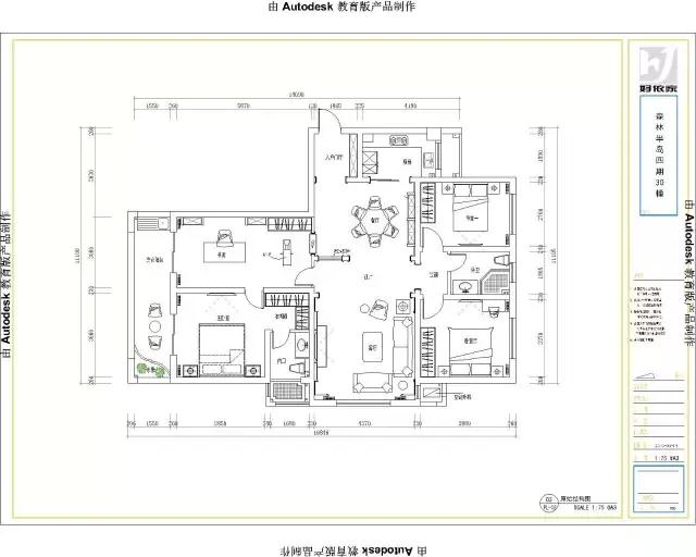
主任设计师:李贺 所在小区:南阳建业森林半岛4期
住宅户型:四室二厅 居住面积:170m²
装修风格:后现代混搭 装修总价: 30W
设计说明:此案例为后现代混搭风格,主要采用地板砖,大理石,木饰面,硬包,壁纸,镜子,铁艺等装饰用材,根据业主需要“以独特新颖,简单大方中又带着一种高贵气质的设计理念”,加上后期家具,窗帘,吊灯的点缀,使整个空间感觉就是简约而不简单,大气又不失舒适,高贵而不落入俗套。


客厅设计具有简欧风格的大气典雅,同时带有些许时尚简约感,空间以米色为主调,并点缀一些咖啡色及色木饰面。简化的欧式线条明快利落,几何图案的天花简单而别致,同样图案的地毯与其交相呼应,仿若其投下的倒影,让人想起徐志摩的一句诗“我是天边的一片云,偶尔投点在你的波心”。欧式吊灯、金属罩灯,彰显出一种古典欧式的雅致韵味,现代风格的家居又增添了简约清爽感,而米白色的沙发、咖色的窗帘、沙发后的大幅水彩梅花画,云烟飘渺,浅淡的绿白中点缀些许柠檬黄,带有春天晨曦的灵秀之气。

客厅效果图
餐厅与客厅相连,设计风格亦如出一辙,几何图案的天花十分别致。大束黄花置于湖水绿的玻璃瓶中,让人感受到春的清新与妍丽。简单别致的酒柜配上精致优雅的欧式大理石角线及大理石小柱子,在大理石一点点深色木饰面、欧式吊灯、金属罩灯,彰显出一种古典欧式的雅致韵味,现代风格的餐桌及餐椅又使整个空间简单大方,青铜色的铁艺隔断凸显出档次,精致优雅的大理石门套线勾勒出空间的轮廓,正是应了那句“使整个空间感觉就是简约而不简单,大气又不失舒适,高贵而不落入俗套”。

餐厅效果图
书房设计具有简欧及现代风格的高贵大气,同时带有些许的庄重感,空间以深色木饰面及米色墙壁为主住装饰,简单明快的吊顶及高贵大方的书柜,欧式吊灯,玻璃灯罩,咖色窗帘,带有后现代感的书桌,摆放的跑步机无一不彰显男主人的生活品味及层次,对生活的热爱,对生命的热爱,大大的落地窗让外面绿意盎然的世界一直延续到房间内,顿时使空间生动起来。

书房效果图
主卧设计整体给人的感觉是舒适雅致、时尚简约,浅米色与深色奠定了整个空间和谐宁静,高贵大方的基调,让人心灵平和。通透的落地窗让户外的景致一览无余,经现代手法重新演绎的欧式墙面装饰,带有一丝欧式风情,又使整个空间显得丰富并具有层次变化。花朵挂画、沙发、以及床上的抱枕,都选用了低饱和度的蓝色,看上去自然舒适。欧式吊灯优雅别致,散发出温暖柔和的光,轻柔地洒在床上、地上以及花瓶里盛开的百合上,不禁让人想起这样一幅美妙的画面:主人经过一夜好眠,黎明渐渐苏醒,清凉的空气拂动窗帘,百合花散发着幽香,时光缓缓移步。

主卧效果图
儿童房设计显得爱意融融,整体给人的感觉就是温馨灵动。桌椅的摆放及书本的陈列无一不在告诉我们这个小主人公的安静好学。墙壁上不规则的组合画上有各种各样的可爱小人物,透明的落地窗让外面五彩缤纷的世界一直延续到房间内。当夜的精灵爬上这小小的床儿,小朋友的梦也一定是多彩多姿、诗意盎然的:或是骑上一匹带有翅膀的白马在蓝天翱翔,或是走进春天的王国和树上的鸟儿来一次愉快的对话......

儿童房效果图
温州好依家装饰装修案例:城市天地,儒林商都、森林半岛3期、森林半岛4期、都市春天、新城国际、贵州习酒、阳光海岸、鸿苑小区、内乡私家别墅、内乡办公楼............
温州好依家装饰公司南阳分公司
地址:南阳市宛城区建设路与孔明路向北300米路西