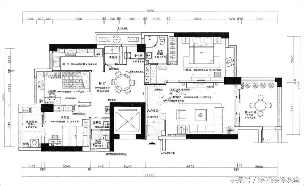
我这套房子三房两厅两卫两阳台,平面图如下。

装修风格上应该属于现代简约一类吧,先带大家快速地浏览地一下,更多图片陆续奉上。
客厅先来。
这个角度从左到右可以看到客厅的大部分,还有我最满意的主卧隐形门,以及视线延伸过去的玄关和餐厅。

然后是餐厅、书房以及储藏室。

厨房。

公卫。

主卧。

次卧。

儿童房。


右边的柜子大概可以放下20双鞋,空间不是很足够,所以换季的鞋以后得另外收起来。

右边的柜子还可以放一些日常用品,可视门铃也直接安装在鞋柜上。

要防止钥匙划伤台面,我的做法是放一个小玻璃碟子,这样就万无一失了。

最后再来一张鞋柜整体图。

鞋柜柜门拉手的细节图,家里厨房、浴柜之外的家具柜门全部都是用这一种型号的拉手,网购自【军yún家居专营店】的96mm孔距亮铬马赛克拉手。

【玄关】
玄关地砖外面这一圈用的用【浅啡网大理石】,地砖是拿某鹏瓷砖的80*80的地砖切割成40*40的小砖,45度斜贴。

玄关背景墙是用【雅士白人造石】和【黑金沙花岗岩】两种石料做的,为了保持白色石料图案的连续性同时节约材料,采用专门的石材水切割机来切,效果非常棒!黑色部分因为不明显,所以只需要用45度斜切的小段石料拼接再填缝就可以了。

天花板做了一些开槽造型,藏光槽和天花顶分别有两个三公分的小台阶,用设计师的说法是可以起到视觉提升作用。照明用的是网购自【文锦照míng专营店】的某士T5灯管支架,并且用两个暖色LED水晶灯【一灯皇dēng饰旗舰店】点缀。

从这个角度看玄关天花,感觉如何?

给LED水晶灯来个特写。

富贵树,学名香花槐,这个绿植如果真的能开花就有意思了。按花圃老板的说法,一个星期浇一次水湿透就好。

踢脚线与地砖是同样材料,拿地砖和部分贴后剩下的边角料到石材店加工切成10公分宽磨边的小条。

这个机器人真是不错,定时每个工作日下午5点开始自动全屋地面扫一遍,扫完自己回基座充电,聪明得不得了。当然了,为了配合它的工作,装修时就要有一些特别的考虑:如无门槛设计、高床脚、高茶几脚等等,这是后话,容后再说。

背景墙的上半部分。

进客厅看看,本地家具城买的【nùo亚沙发】,胜在简洁,茶几和角几是网购【斯dì罗兰】自由之风系列。

换个角度从阳台门看过来。

阳台门的窗纱,只用了一层。

电视背景墙贴的是墙布,要的就是整幅无接缝的效果,当然啦,在隐形门的地方不得不出现了小小的门框和把手,这也是没办法的事。如果没有门框,门使用时间长了门边上的墙布一定会剥落;如果没有把手,手接触到的地方久了一定很脏。鱼与熊掌不可兼得,取个折中吧。

换个角度再来一张。

简洁的茶几就是一个框,下面放些个茶叶、遥控器正好,平时清洁也不麻烦。

换个角度再看,这下面以后放几本杂志,空间那是绰绰有余的。

应该还是有挺多朋友对我家的木通花隔断感兴趣,那好,多拍几张分享一下:
(图一)继续拿鞋柜上面的这一片来秀

OK,回到客厅,仔细看看电视柜。台面是黑色钢化玻璃,柜体为烤漆,抽屉和拉门是灰镜,柜脚为不锈钢。

两边的抽屉采用按压弹出结构,高度非常适合存放CD、DVD(有人在高清时代还看DVD么?)

阳台门之前临时贴上的红色胶带终于可以换掉了,花了一个钟头,和小朋友一起把从【云诺家jū旗舰店】网购的164朵玻璃贴花一朵一朵地贴上去,大家觉得效果如何?

客厅阳台门的窗纱,因为我觉得客厅没必要搞得太复杂,又没有安装投影设备需要在白天遮光, 所以只用一层纱,从简。

窗纱整体效果。

空调的出风口与进风检修口,本来有个1.2米就足够空调工作检修的了,但设计师说长一点的口会更加大气,从成品效果来看跟网上一些短风口的图比较,这样的长条风口还真是更讨人喜欢。

给天花角落来个特写,小台阶形状的吊顶是有一点提升空间的效果。

电视背景墙上方的三个LED射灯。

图片上天花板中间部分有点发暗,实际的效果是很亮的,通常我只开一组短的光管就已经完全满足照明的需要。

红!

橙!

黄!

绿!

青!

紫!

白!

喘口气,呼……到天花下面看看LED灯带在藏光槽中的样子。

从玄关方向看过来,关门时:

从玄关方向看过来,开门时:

从沙发方向看过来,关门时:

从沙发方向看过来,开门时:

从卧室方向看过来,关门时:

从卧室方向看过来,开门时:

近看隐形门上方。

再近一点点,门框和门板上的墙布都被木线条紧紧压住。

门的下半部分,踢脚线是用玻璃胶贴在门板上的。

隐形门可以在打开到80度以上时固定不动,小于80度时自动关闭,全靠这两个网购自【沃fū尔2008】的PIANO液压合页。

近一点看看合页。

阳台门边的黑镜。这个地方是房子的承重墙,因为电视背景墙后退了十公分所以就像是突出了一根柱子,用带图案的黑镜包起来与左边玄关背景墙的白色形成鲜明的对比,大大的太阳花图案和鞋柜上的木通花一样。

最后再来看看鞋柜的背面,黑色的部分同样是片黑镜,坐在沙发上看过去似乎幻彩LED灯又长了不少,有拓展空间的感觉。

玄关1

玄关2

玄关3

玄关4

客厅1

客厅2

客厅3

客厅4

客厅5

【公卫】
接下来我们一起看看公卫。先看专业的角度:干湿分离,门口的垫子特别选了一张 65cm*120cm 的,这样就可以兼顾两个区的吸水啦。隔断与鞋柜隔断是一样的图案,同样是两层玻璃夹着木通花。

干区这部分一面墙是水晶棕玻璃马赛克,另一面是和湿区相同的墙砖。网购的浴柜台盆可以选择在左边或右边,宽度也有多个尺寸,我安装的是如图右盆80cm型号,两个置物架和下方的储物空间完全够用。之所以选右盆,是因为在这边洗手洗脸万一水溅出来不会搞到玻璃隔断上。

为了方便清洁,浴柜与隔断之间留出大约4公分的空隙,而且浴柜左边置物区的设计也有利隔断的清洁工作,完美搭配!

近一点看看台面。

镜前灯,不用说,也是网购物品,简约造型,表面拉丝铝合金,关灯状态下。

开灯状态下。

公卫玻璃门,原本可以清晰看见上面的乳化玫瑰花图案的,但看来看去总是太透,所以再贴了一张膜上去,好多了。10厘钢化玻璃是本地玻璃店定制的,合页、拉手、门锁均为网购。

墙砖和地砖是经过千挑万选仍没定下来后在那家店里偶然看到就一见钟情无法舍弃毫不犹豫马上下订而来的……呼……,因为受够了原来房子里面浅色卫生间地砖易脏,这次用了深色的,效果很是满意。

右看看。一会再介绍这个花洒。

下看看。

上看看。网购的浴霸,已经把照明、取暖、排气三合一了,我要的就是这个。

【厨房】
厨房门口来一张。本地定制的玻璃移门,10厘钢化加表面乳化图案处理,为了方便清洁油污,乳化图案是做在外面的,图案是与木通花一样的太阳花,门拉手和吊轨、滑轮均为网购。门把手的位置与储藏室的门把手一样,离地1米。

注意墙上的马塞克腰线,设计师的方案里面本来没有这一块的,但我考虑到整面墙都是白色墙砖有点单调,所以自作主张加上这个,完工后看上去还挺满意的。

回过头来看看玻璃移门的吊轨,哦对了,门两边的防撞条也是网购的。厨房的天花板使用铝塑板,比起一片片的集成吊顶,我还是更喜欢这种。
哦,忘记放上专业摄影师眼中的厨房了,补上。顺便让大家看看厨房天花完整的布局,主照明灯是平板LED,水槽上方还有一个暖光LED筒灯。

吊柜。中间有安装透气孔的是天燃气表所在,完全按安全规范要求去做,马虎不得。

抽油烟机右边安装了一个吊柜升降拉蓝,调味品全部放置在这里,需要的时候,打开门,随手……

一拉,就下来了。使用完,轻轻一推,就升回去,极其方便的说。

左边是与烤箱同品牌的消毒柜,讲到这里就要吐槽一下这个某门子品牌了,两件产品本来就是同一时期、同一系列、同一风格,可两个机器上面这个黑玻璃和不锈钢居然不是一样的高度,对不齐,太恶心了,完全不是国际大品牌、细心德国工匠所为!

【童房】
依然以专业摄影师的角度进来看看。

房门是白色的,正好在上面贴个身高尺。

飘窗边上这个大壁柜,较好地利用方式是放几个大塑料整理箱,慢慢来吧。

书桌,飘窗。

书桌有两个桌面,拉出来,启动“做手工模式”。

转过去,启动“下棋模式”。

飘窗上铺的是实木地板,坐在这上面看书也行,躺着休息也行,舒服!

童房飘窗上的洋葱头吊灯,网购而来。

飘窗上的暖色藏光槽。

三开门衣柜,从漆面的平整光滑度、配件的做工、使用缓冲铰链这几点就可以看出这套童房家具的质量是可以信得过的。

1.2米的床。这里要介绍一下神奇的床垫,运送状态居然是压缩卷成一卷的,打开后再慢慢恢复成现在的样子,完全不会因为压缩而变形,且硬度还能做到偏硬,真是了不起!

床下的两个小抽屉。

【次卧】
童房在右,次卧在左。

进门先看到的是衣柜侧面的装饰造型。

从门口看进去。(这个角度是参考了摄影师的作品,当时来拍的时候还没有书柜)

次卧的床是1.5米实木床,简约造型正是我非常喜欢的那种。

床头柜可以移动成为小桌子,还可以放平成为凳子,一物三用。

玻璃移门衣柜,和童房一样的某力空调。

书柜,下面这两层把我这些年来收集的CD和DVD全放进去了,至少书嘛……李小龙说:你唔好虾我读得书少!

次卧阳台门上与客厅阳台门一样贴上了花朵贴纸,只是换了一种深浅紫色,也挺好看的。

【生活阳台】
左边是洗衣机与拖把池。

换个角度可以看清插座与龙头的位置,最左边的晾衣架的升降控制。

两排晾衣架。

封阳台用的是某景阳台的铝合金玻璃窗,现在是关闭的状态,不怕雨水打进来,打开时则可以全部移动到左边。

阳台右边的墙上做了个壁柜。

下面则是洗衣池和备用龙头。

【景观阳台】
景观嘛也就是看小区里面的楼、楼、楼,楼下的绿化也还没完全长好,自己阳台上的花花草草倒是摆了一圈。

阳台保留原来的下水口,无需改动。备用龙头也装在上面,接水的时候有洒落也不会流得到处都是,龙头上面安装的是水******的接头,要冲洗阳台、给花草洗澡时接上管子就能用,方便得很。

电源插座要设置在雨水打不到的地方,但是为了防止喷洒花草的时候把水弄到插座里,防水盖是不能省的。

阳台照明就靠顶上这个长方型的可的吸顶灯了,当初贪便宜没买防虫的灯,所以时不时得拆下来清理灯罩里面的小虫,还好有吸尘器不算太麻烦。

茶几上面摆几盆小的绿植,下面放整理花草要用到的工具,恰到好处。

打开门,这一张出自摄影师之手,拍得真好。

浴柜。

下面的柜子是固定在墙面上的,这样清洁卫生也方便,还不怕浸水。柜门是和橱柜一样的香槟金烤漆,拉手也相同,台面也是英国棕。

方形的台上盆没有溢水孔,所以平时使用的时候得比较留心。又见水晶棕玻璃马赛克。

上面的镜柜可以放电吹风、药品等东西,柜子上下安装T5暖光灯管。

再来一张,这马赛克真是很配英国棕。

淋浴间内外的地砖虽然是一样的,但做的时候可是先贴轨道石条,再将地砖仔细裁出曲线边缘贴上去,这师傅的手艺还是很好的。

中间,是的,和公卫一样的恒温龙头。

浴霸安装在花洒上方,卫生间的排气也靠它了。左边镜子上反射的是LED平板灯,功率小小,亮度可不小。

打开花洒,洗白白喽! :-)

【主卧】
推开主卧房门,迎面而来的是衣柜侧面的艺术造型,这个地方的木工制作、喷漆都非常麻烦,花费不少。一直没找到适合的摆件,所以只好暂时放个水晶玻璃物件上去,明显太小,网友们如果有好介绍一定要告诉我哈。

主卫门口这里是小衣柜,整面的镜门,正好是个更衣的好地方。

转身过来看一下。

1.8米大床是一定要的!背景墙用的是螺旋纹理壁纸,浅紫******案和窗帘、衣柜门的颜色非常协调。

大衣柜和次卧的衣柜用的是同一种玻璃移门,图案和床单枕头的图案、色调也蛮接近的嘛。

梳妆台、电视柜一体化,通常大家在卧室里装的都是32寸电视吧,楼主我喜欢大的,装了37寸的,下面是个飞利浦的床头音响,放CD、插iPhone那是再好不过的。

两个靠枕是用窗帘的边角料做的,不用另外花钱哦。
住的楼层低好处就是,坐在飘窗上就能看到楼下的绿化,特级园心景致尽收眼底,你觉得怎么样?

扫描了一张全屋的平面图,点击打开还可以看大图。

【书房】
小小的书房,够用就好。算起来也就1点几个平方,与其说是书房,更像是个网吧包厢。没有选择带小轮子的电脑椅,一是考虑到空间小,推来推去老是会撞到墙,二来是个人实在太喜欢目前这个伊姆斯椅。当然了,为了保护后面墙角,一条亚克力护角还是不能省的。

楼主我真是读的书少,这小小一个书架都放不满,让大家见笑了。 iPad 是有的,iMac 就没下决心,DELL 的一体电脑跟 iMac 比相去甚远,现在想起可真是后悔呀。

桌面来一张,不用大,够用就好,对吧?

HP 的无线打印机放在下面这个小柜子上正好。小柜子看着眼熟吧,是的是的,它本是童房家具套装之一的床头柜,小盆友的房间里面已经放不下,我就不客气地强行征用了,哈哈。

墙上的小书架。

书架上的小小玻璃摆件。

藏室】
千呼万唤始出来,展现一下储藏室啦!
看门,制作的时候也是按隐形门做的,不过实际效果……被拉手和门框缝隙出卖了……

当然,不锈钢拉手还是很好用的,平时拉环与门平齐。

开门的时候提起拉环,一转,锁就开了。

左瞧瞧:一个手推车架(53*32*100),移动方便;后面的柜子里其实也是一个手推车架(40*32*75),不过轮子就卸掉了。这两个层架让储藏室可以放入更多的小物件,又不会乱成一团。

右看看:家中必备的铝合金梯,几张备用的餐椅,有客人来聚餐时就可以派上用场了,吸尘器也是相当实用的电器,清洁卫生死角、地毯、扫地机、吸压缩袋……用途多多,最近还看过一个鬼佬给女儿扎辫子也用它,可惜楼主只有男孩……
What,椅子上的黑箱子是什么?嘿嘿嘿……

还在装修的时候就入了一箱相片墙,沉睡一年多,终于要正式就位了,安装的地方就选在玄关的这面墙上。
1、先将模板纸在墙上比划好位置,用胶纸固定好。其实是有两种模板的,相比另一种四四方方的,我更喜欢这种略显不规则的布局。

2、先钉上一个挂钩,装一个相框上去感觉感觉,嗯,还不赖。

3、那就将挂钩全数敲上墙吧!

4、想来这模板纸也不会再用第二次了吧,撕掉!哎呀……撕了就不知道哪个挂钩怎么挂哪种大小的相框了呀,这可如何是好……

5、所以呀同学们,一边工作一边用相机记录过程是多么的重要,纸虽然撕了,可相机里还有刚刚拍下的照片嘛对不对,一个框一个框挂上墙。

6、有一些旧相片是直接就能装到相框里的,另外一些原本打算选了照片后去冲洗出相应尺寸,但洗相片特别是大尺寸的相片价钱可不少,因此先拿打印机打了一些出来,装上看看,嘿嘿,虽然比不得冲洗的效果,但也差不到哪去,又省钱了!

这些相框的颜色和大门还挺配的哈,大功告成!
装修设计的时候根本没打算要上投影,因为那时的我觉得55寸3D-LED平板已经可以满足我的要求,实在要看大幕就上电影院,因此连给投影用的HDMI线都没有预埋。来,给大家看看现在设备:

电视是创维的55寸LED,主音箱是惠威T600F,中置惠威T600C-II,低音惠威SUB10V,后环绕是惠威T200。选择这套箱主要是因为——好看!呵呵

功放则是安桥的TX-NR616,除了因为它的深度够小,可以放入电视柜中,还因为这机子有两个HDMI输出口,也许冥冥中我还是有上投影的潜意识吧。

上个设想图:

计划中的方案是这样的:
1、因为没有预放HDMI线,所以要从功放到投影机另外放一根。如上图的红线所示,其中有一大截不可避免地要走明线,尽量延踢脚线走到右边的角落上,然后在窗帘布后面上吊顶,再走灯槽到投影机的位置。量了一下,要11.2米,这样入一根12米的HDMI线长度正好。
2、同样原来没有做幕布槽,又要避开壁挂的电视,所以幕布(图中黄色部分)只能用吊装电动幕。电动幕的电源初步考虑是从电视背景墙的射灯取(因为平时也基本不开)。
3、投影机吊装在沙发墙吊顶下。
★装修怕坑,告诉你残酷真相,关注装修课堂微信【zx029zx】