装修风格:简欧风格
装修套餐:528套餐
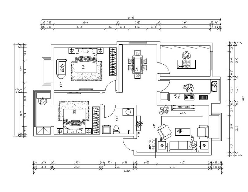
小区面积:114平方
套餐造价:7.4万
个性造价:52000元
工程造价:12.6万
设计师:苏亚坤(微信号:13949009030)
装修公司:美巢装饰
设计说明:三室两厅114平装修案例,欧式风格主要以丰厚的文化气息,搭配宽大精美的家具,整体营造出一种华丽、高贵、温馨的感觉。本设计中在给予空间生命力的同时也饱含文化情趣,搭配上欧式家具,石材,饰品等完美结合,将欧式风情演绎的淋漓尽致。
114平方三室两厅简欧装修案例效果图——要求立体空间材质的搭配以及整个欧式空间元素的融入
114平方三室两厅简欧装修案例效果图——沙发布局
114平方三室两厅简欧装修案例效果图——餐厅
114平方三室两厅简欧装修案例效果图——平面户型图

114平方三室两厅简欧装修案例效果图——功能区主要以舒适,实用,生活为设计目的
更多室内设计欣赏,可加设计师小李微信(Lsn018)