简易半开放驴棚、驴圈、驴舍要三面有墙,向阳一面敞开,有部分顶棚,在敞开一侧设有围栏,水槽、料槽设在栏内,养殖的肉驴散放其中。每圈(群)15-20头,每头驴占有面积4-5平方米。这类驴棚造价低,节省劳动力,但冷冬防寒效果不佳。







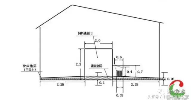
驴舍建设是养驴的基本条件和要求,驴舍建设方式和类型很多,养驴朋友尽量就地取材,降低驴舍建设成本,驴舍建设豪华与肉驴养殖效益无关,主要抓住重点,驴舍的作用是遮风,挡雨,避寒,避暑,牢固,耐用就好,下面由当代驴业提供几张驴舍建设图纸,仅供参考。





(当代驴业)

水勿忧-清理水线、饮水消毒,减少肠道病的发生
价格: 960
学习养殖技术,了解养殖行情,咨询养殖问题 ,欢迎关注“中国养殖业联盟”微信公众平台,微信公众号:zgyzylm
| 一、场址的选择驴场场址的选择,要有周密的考虑、通盘的安排和比较长远的规划,以适应现代化养驴的需要。所选场址要有发展的余地。驴场要修建在地势高燥、背风向阳、空气流通、地下水位低便于排水并具有缓坡的开阔平坦的地方。总的坡度应向南倾斜,山区或丘陵地区应把驴场建在山坡南面或东南面。驴场用地土质要坚实,最好是砂质土嚷,透水透气性好。但被有机物、病原菌、寄生虫及其他有害物质污染的土壤,对驴的健康、生产无益。驴场址的水量应充足,水质良好,以保证生活、生产及驴等的正常用水。通常以井水、泉水等地下水较好,而溪、河、湖、塘等水应尽可能经净化处理后再用。场址应距饲料地或放牧地较近,交通便利,供电方便且有保证。但应适当远离公路、铁路牲畜市场、屠宰场及居民区。要求距交通道路不少于100 米,距交通干线不少于200 米。另外建驴场还应考虑当地常年的主要风向,驴场应建在居民点的下风头,距住宅区150-300 米。总之要在居民区、生活区及水井下风向的地方,以利于环境卫生。 | 二、驴场的总体布局驴场主要分生活区、生产区及隔离区等。1 生活区生活区指职工文化住宅区。应在驴场上风头和地势较高地段,生活区有宿舍、食堂、居民点等。各区之间要严格分开,间距应在100 米以上。 | 2 生产区生产区应设在场区地势较低的位置,要能控制场外人员和车辆,使之不能直接进入生产区,要保证最安全、最安静。大门口设立门卫传达室、消毒室、更衣室和车辆消毒池,严禁非生产人员出入场内,出入人员和车辆必须经消毒室或消毒池进行消毒。生产区驴舍要合理布局,分阶段分群饲养,各驴舍之间要保持适当距离,布局整齐,以便防疫和防火。但也要适当集中,节约水电线路管道,缩短饲草饲料及粪的运输距离,便于科学管理。粗饲料库设在生产区下风口地势较高处,与其他建筑物保持60 米防火距离。兼顾由场外运入,再运到驴舍两个环节。饲料库、干草棚、加工车间离驴舍要近一些,位置适中一些,便于车辆运送草料,减少劳动强度。但必须防止驴舍和运动场因污水渗人而污染草料。 | 3 .隔离区隔离区包括隔离、剖检、化验、处理等房舍和设施,粪便污水处理及贮存设施等,是肉驴场病驴、粪便等污物集中之处,是卫生防疫和环境保护工作的重点,该区应设在全场的下风向和地势最低。 | 2 .双列式双列式驴舍有头对头与尾对尾两种形式。( 1 )头对头式中央为运料通道,两侧为食槽,两侧驴槽可同时上草料,便于饲喂,驴采食时两列驴头相对,不会互相干扰。( 2 )尾对尾式中央通道较宽,用于清扫排泄物。两侧有喂料的走道和食槽。驴成双列背向。双列式驴棚可四周为墙或只有两面墙。四周有墙的驴舍保温性能好,但房舍建筑费用高。因为肉驴多拴养,因此牵驴到室外休息场比较费力,可在长的两面墙上多开门。多数驴场使用只修两面墙的双列式,这两面墙随地区冬季风向而定,一般为驴舍长的两面没有围墙,便于清扫和牵驴进出。冬季寒冷时可用玉米秸秆编成篱笆墙来挡风,这种驴舍成本低些。半开放驴舍三面有墙,向阳一面敞开,有部分顶棚,在敞开一侧设有围栏,水槽、料槽设在栏内,驴散放其中。每舍(群)15-20头,每头驴占有面积4-5平方米。这类驴舍造价低,节省劳动力,但冷冬防寒效果不 | 2、塑料暖棚驴舍:塑料暖棚驴舍属于半开放驴舍的一种,是近年北方寒冷地区推出的一种较保温的半开放驴舍。与一般半开放驴舍比,保温效果较好。塑料暖棚驴舍三面全墙,向阳一面有半截墙,有1/2-2/3的顶棚。向阳的一面在温暖季节露天开放,寒季在露天一面用竹片、钢筋等材料做支架,上覆单层或双层塑料,两层膜间留有间隙,使驴舍呈封闭的状态,借助太阳能和驴体自身散发热量,使驴舍温度升高,防止热量散失。修筑塑膜暖棚驴舍要注意以下几方面问题:⑴选择合适的朝向,塑膜暖棚驴舍需坐北朝南,南偏东或西角度最多不要超过15°,舍南至少10米应无高大建筑物及树木遮蔽。⑵选择合适的塑料薄膜,应选择对太阳光透过率高、而对地面长波辐射透过率低的聚氯乙烯等塑膜,其厚度以80-100微米为宜。⑶合理设置通风换气口,棚舍的进气口应设在南墙,其距地面高度以略高于驴体高为宜,排气口应设在棚舍顶部的背风面,上设防风帽,排气口的面积为20厘米×20厘米为宜,进气口的面积是排气口面积的一半,每隔3米远设置一个排气口。⑷有适宜的棚舍入射角,棚舍的入射角应大于或等于当地冬至时太阳高度角。⑸注意塑膜坡度的设置,塑膜与地面的夹角应在55-65°为宜。 | 3、封闭驴舍:封闭驴舍四面有墙和窗户,顶棚全部覆盖,分单列封闭舍和双列封闭舍。单列封闭驴舍只有一排驴床,舍宽6米,高2.6-2.8米,舍顶可修成平顶也可修成脊形顶,这种驴舍跨度小,易建造,通风好,但散热面积相对较大。单列封闭驴舍适用于小型驴场。双列封闭驴舍舍内设有两排驴床,两排驴床多采取头对头式饲养。中央为通道。舍宽12米,高2.7-2.9米,脊形棚顶。双列式封闭驴舍适用于范围较大的驴场,以每栋舍饲养100头驴为宜。 |