
银城一方山位于江宁地质公园东麓,规划建设12栋精装小高层、22栋毛坯叠拼别墅、1栋社区中心和1栋社区商业。22栋叠拼别墅主力户型为建筑面积160—210平米的四房五房。2016年年底首批交付,2017年3月份即将迎来第二批新房交付。
在即将迎来的第二批收房之际,小编特整理出别墅全户型解析供业主们赏析。今天一起来看看上叠171平的户型解析吧!
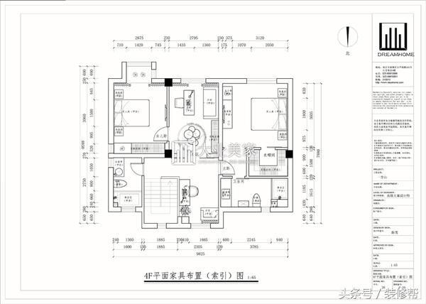
上叠 171㎡
美式+新中式
户 型 分 析—不足之处
原户型上一楼厨房空间利用率不高,客餐厅优点是开间大。但也有不足之处,体现在尺寸上有点憋屈,楼上的每个空间都过小,利用率不高。



户 型 分 析—闪光亮点
花园洋房,整体采光非常好,大通间,设计感强,挑高高,另外附加面积多,私家露台,增加娱乐性,生活感强,尽情享受私家花园。



美式+新中式风格
效果图赏析


全面的3D设计图、施工图等,敬请联系*京大南**业美家装饰:400-100-0619