生活在北方的人,大概无法想象武汉的夏季拥有怎样的高温。
“七月流火”,也许就是最适合形容武汉七月的词汇了。
装修管家甘宁同学,作为一个敢于挑战自己的人,又怎会惧怕那高高在上的太阳?

犹记那天是7月6日,他一早就与汉屿装饰、家装e站、维艺装饰这三家装饰公司的相关人员相约,一起来到了业主张女士即将装修的房屋所在地——泛海国际,进行量房。
张女士表达了自己的装修需求,对装修公司资质提出了严格的要求,对工艺和材料的要求也颇高,对甘宁同学的验收更是抱着很大的期望。在现场,各公司讲解了自己的报价模式,甘宁也对管家服务进行了相应阐述之后,与张女士相约三天内三家公司分别出平面方案及报价。
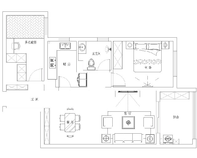
在装修之前,张女士的房屋是这样子的:











在甘宁对该房屋的严格检查之下,得到了以下结果:
卫生间是否反味 - 否
墙地砖是否开裂脱落 - 否
地板是否空鼓变形 - 否
厨房是否漏水反味 - 否
墙面是否开裂 - 否
三天后,张女士接到了甘宁审核后的报价,经过综合对比,最终选择了家装e站为自己的爱屋进行装修。

平面方案

家装e站 · 报价
7月17日,签订三方合同后,装饰公司与张女士确定了开工日期,由此,我们的服务才刚刚开始。
两天后,开工仪式顺利举行。

要知道,此时已是7月中旬,正是一年中最热的那段日子。
甘宁深知自己肩负着张女士的厚望,虽然十分相信装修师傅的水平和手艺,但他依旧坚持每天都去工地检查一次,做到巨细无遗。
在他和装修师傅的共同努力下,很快,在7月26日,就进入了水电材料验收的阶段。经过严格的检查和确认,这些材料质量均合格,并符合报价清单的要求。






正所谓,工欲善其事,必先利其器。
水电材料验收结束之后,就可以开工了。
在接下来的一周半的时间里,甘宁同学依旧坚持每天去工地检查,试图把水电工程做得天衣无缝、滴水不漏。
从下列图中,可以清晰的看到他的认真和专业。













在他这样的认真监督之下,很顺利的,水电工程验收合格,符合我们的验收标准。所使用材料均为合同报价材料,没有不符合要求的材料。*压打**至0.8MP,半小时内掉压不超过0.05MP,整体布管横平竖直,走位合理,管卡分布合理,左热右冷,厨卫水电皆走顶,强弱电分管布置,按照交底位置布置,符合使用要求和规范。
按照装修的顺序,水电工程验收结束之后,就要进行防水工程了。
众所周知,这是一项非常重要的工序,一丝一毫都关联着业主未来的生活质量。甘宁同*联学**系了小区物业的工作人员,一起对防水工程进行了验收。




至此,在甘宁同学的严格监管之下,水电阶段就全部顺利的落下帷幕,张女士家的装修进入了瓦木工程阶段。
时至八月底,炎热的天气却并没有好转起来,而就在这恶劣天气造访武汉的时间里,甘宁同学要对瓦木材料进行验收了。
经过严格的检查,瓦木材料验收合格,均符合报价材料要求。



在瓦木工程验收的过程中,甘宁先后对排水、墙地空鼓、墙地砖拼花等进行了验收。令人欣慰的是,所有项目均合格,整体墙地砖空鼓率不超1%,墙地砖拼花正确,接口平齐,平整度误差不超3mm,垭口预留合理,吊顶符合设计规范,均按照交底安排施工。











就这样,顺利的进入到油漆材料验收阶段。
看下面的图,就可以知道,这么多的材料,没有装修经验的人一定觉得眼花缭乱,看多了头疼,可不看又不行。
还好,甘宁同学经验丰富,在他对材料的认真检查之下,在十一长假之前准予油漆工程进行施工。







十一长假才刚刚结束,甘宁同学就又开始了他马不停蹄的验收工作。
这一次是油漆工程的验收,检查墙面的平整度,边边角角是特别要留意的地方,往往一些开裂现象都从边角开始。
张女士在工程的后期贴了壁纸,腻子施工结束打磨后,涂刷了基膜。





随着安装工程的开始,整个装修也进入了尾声。
在甘宁同学的近乎苛刻的检查之下,张女士家水路通畅,电路正确,门开合顺畅且未有划痕阻塞现象,锁具顺畅,浴室柜马桶排水顺畅未有渗漏情况,橱柜安装合理,五金安装正确,收口打胶均已处理,灯具开关安装美观正确,各路开关均可正常使用。










10月20日,这历时三个月的装修,宣布了竣工。
甘宁同学秉持着站好最后一班岗的原则,对工地进行了竣工验收。

在整个施工过程中,张女士对甘宁同学一直持好评,这也让甘宁同学对自己的工作更加认可,即使每天顶着烈日骄阳,也不会因此放弃自己认真工作,为业主着想的原则。
也正是这样认真严谨的工作态度,像一股清凉的风,在这炎炎夏日,为业主带来最舒适的感受。
最后介绍一下本文男主角:甘宁同学。

甘宁
(真名:王磊)
服务客户数量:238户
用户好评度:97.80%
个人标签:认真细致
管家宣言
做任何事都不忘初衷,用心去服务每一位用户,
这是对自己的承诺,也是对用户的承诺。
帮用户建造一个温馨舒适的家,是我的职责,也是我的骄傲。
工作教育经历
中国建设教育协会认证,中国建筑装饰协会认证。
参与项目
天津恒大帝景,华润橡树湾, 融创中心 ,万科四季花城,
北京天鹅湾,润丰水尚,京达国际等
200余套建筑装饰项目的工程质检工作 。
从大学开始接触建筑装饰工程的学习,到逐渐进入家装行业,
从施工方案到工程报价,从施工材料到施工质量,每一项都要严格把关。
关注每一个细节,从源头杜绝施工问题,更专业,更专注,
更专心的服务是客户需要的,
而我们担负的是让客户更放心 更省心的责任。