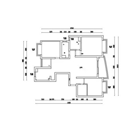
今天小编为大家带来的这款案例是一套160平米的大户型,因为房间较少,所以每个空间都会显示的更加的宽敞、大气一些。本案例以玄关端景为中心,右侧则是客厅区域,视线开阔,动线流畅,整体呈现大气唯美格调;玄关端景的左侧是餐厅区域,地面延续温润的木色,搭配柔和墙面,圆形吊顶与餐桌呼应。U型定制橱柜的设计,最大程度的利用了厨房空间,灰紫色的柜门搭配蓝灰色窗框,给人浪漫愉悦的料理环境。
面积:160平米
风格:法式混搭简美

160平米法式混搭简美家装实景,空间少格局大

160平米法式混搭简美家装实景,空间少格局大

160平米法式混搭简美家装实景,空间少格局大

160平米法式混搭简美家装实景,空间少格局大

160平米法式混搭简美家装实景,空间少格局大

160平米法式混搭简美家装实景,空间少格局大

160平米法式混搭简美家装实景,空间少格局大

160平米法式混搭简美家装实景,空间少格局大

160平米法式混搭简美家装实景,空间少格局大

160平米法式混搭简美家装实景,空间少格局大

160平米法式混搭简美家装实景,空间少格局大

160平米法式混搭简美家装实景,空间少格局大

160平米法式混搭简美家装实景,空间少格局大

160平米法式混搭简美家装实景,空间少格局大

160平米法式混搭简美家装实景,空间少格局大

160平米法式混搭简美家装实景,空间少格局大

160平米法式混搭简美家装实景,空间少格局大

160平米法式混搭简美家装实景,空间少格局大

160平米法式混搭简美家装实景,空间少格局大
你,新家要装修?点击下方图片10秒知道自家装修需要多少钱?