戳头条号笔者名称,关注“南昌玲子装修”
我会每天给你惊喜的哦!只发布最新开工的南昌各大楼盘工地案例!只给你有价值的参考!
房子装修的事情可是一拖再拖了哦!其实在房子下来的前一年我们就在了解装修了,那时候觉得活动经常有,设计师让我们下定,我们也没有上心,没想到今年算了下价格后,还多出了几千块钱,没办法,老婆非常认可这位设计师,材料费人工费上涨也情有可原,也给后面准备装修的业主提个醒,如果多番比较后挑中了自己喜欢的装饰公司,那还是早点定好,南昌装修市场也算是被我们了解了个透了,真正排上好的大公司都是公开透明操作的,所以,消费明白的时候就别让自己多花出了些银子。如果您也急着装修,可以戳头条号名称关注后,进入页面左下角找到我。
设计师:聂志勇
职务:首席设计师
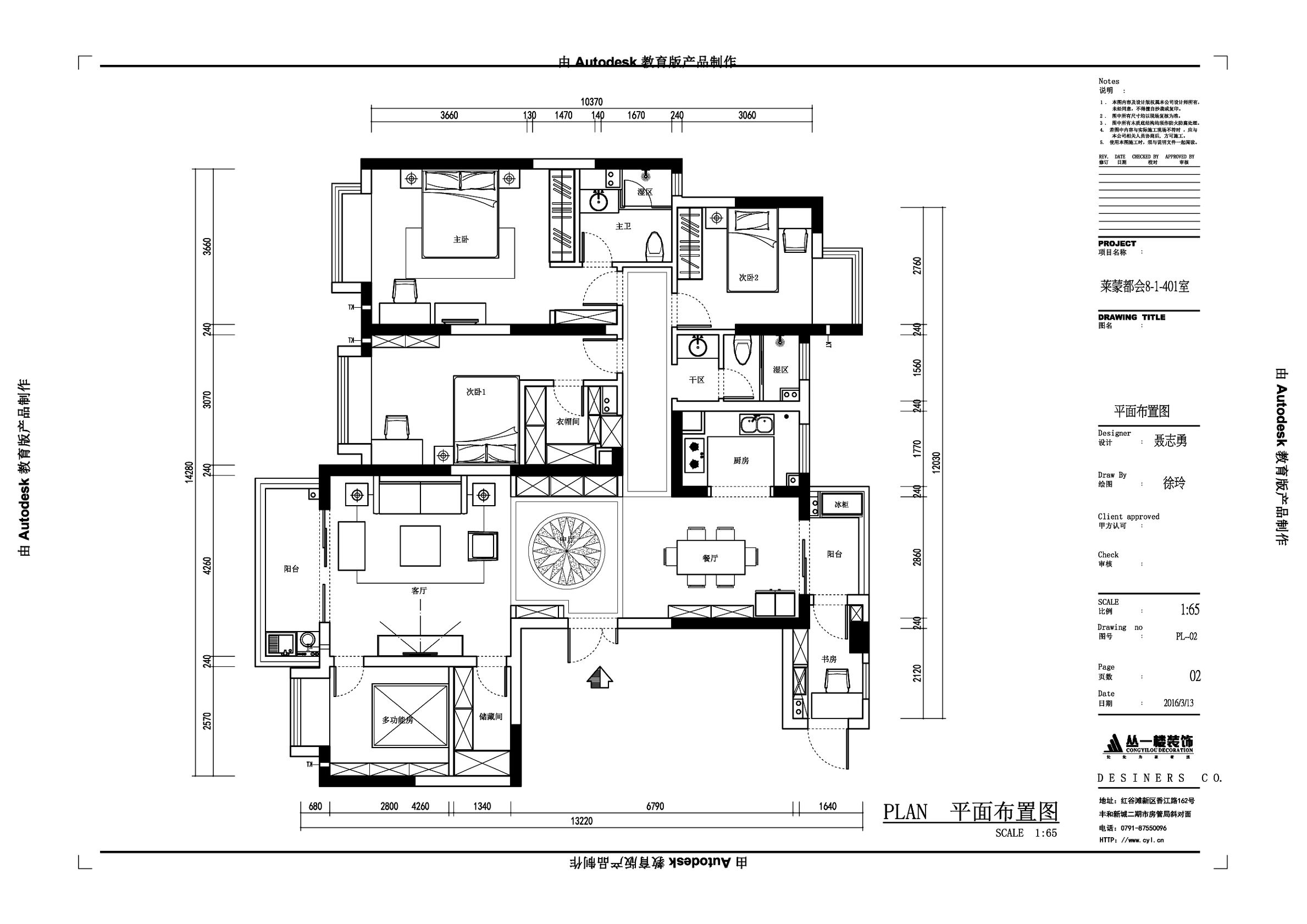
楼盘:莱蒙都会8-2-40X
户型:4房2厅
面积:170平方
风格:现代风格
半包预算:13万
项目:1、水电;2、墙地砖安装、防水防漏;3、天花板造型、墙面造型、电视墙造型;4、墙、顶面漆;5、地板、防潮处理;6、灯具、洁具安装
主材:大理石、抛光砖、实木地板、灰镜、墙纸等
设计说明:本案例是现代风格,力求简约温馨。




我叫玲子,专注南昌装修15年,工地正在施工中,欢迎参观。
南昌各大楼盘近期交房(联泰梧桐壹号、新力雅园、莱蒙都会、绿藤雅苑、中兴和园、海域香廷、保利金香槟、中骏蓝湾、中央香榭、众森红谷一品、联发君领朝阳、绿地国际博览城、万达旅游城....)的业主,赶紧GET起来吧!
-------我是华丽丽的分隔线--------
点开笔者头像进入主页,点击左下方“我要装修”,立即预约设计师!