温和的木制,暖色主色调
精工制作的金属灯具
清新、健康
写尽现代家居的诗意
客厅应该是这样的一个建筑
不但能够满足基本的生活需求
而且要能充分享受自然
一切毫不矫揉造作的事物
毫不刻意雕琢的美
都能让人久久欣赏,难以忘怀

主创设计:张凡
项目地址:龙城公馆
项目面积:130平方米
项目竣工:2017年
设计施工:香港维策装饰
●
THE LIVING ROOM
●

整体风格以温和的木质和暖色的米色为主色调,另外部分墙面及软装饰用温文尔雅的淡蓝色为过渡基调完成了整个空间的搭配。让整个空间呈现出清新.素雅的空间气质。

●
THE DINING ROOM
●

因为整个空间的整体材质都是属于比较“软”的材质。所以在客餐厅及主卧的空间搭配上在局部顶面和里面上用到了一些金属材质来做点缀,这样无形给空间带来了一些灵动性,增加了空间在材质上的对比。



●
THE KITCHEN
●


●
THE BEDROOM
●



●
THE TATAMI
●

在书房的设计上,因为业主对书房的使用时间很长,所以整体墙面用到的是比较跳跃的星空蓝作为基色,这个不会让人产生疲劳感。
●
THE BATHROOM
●

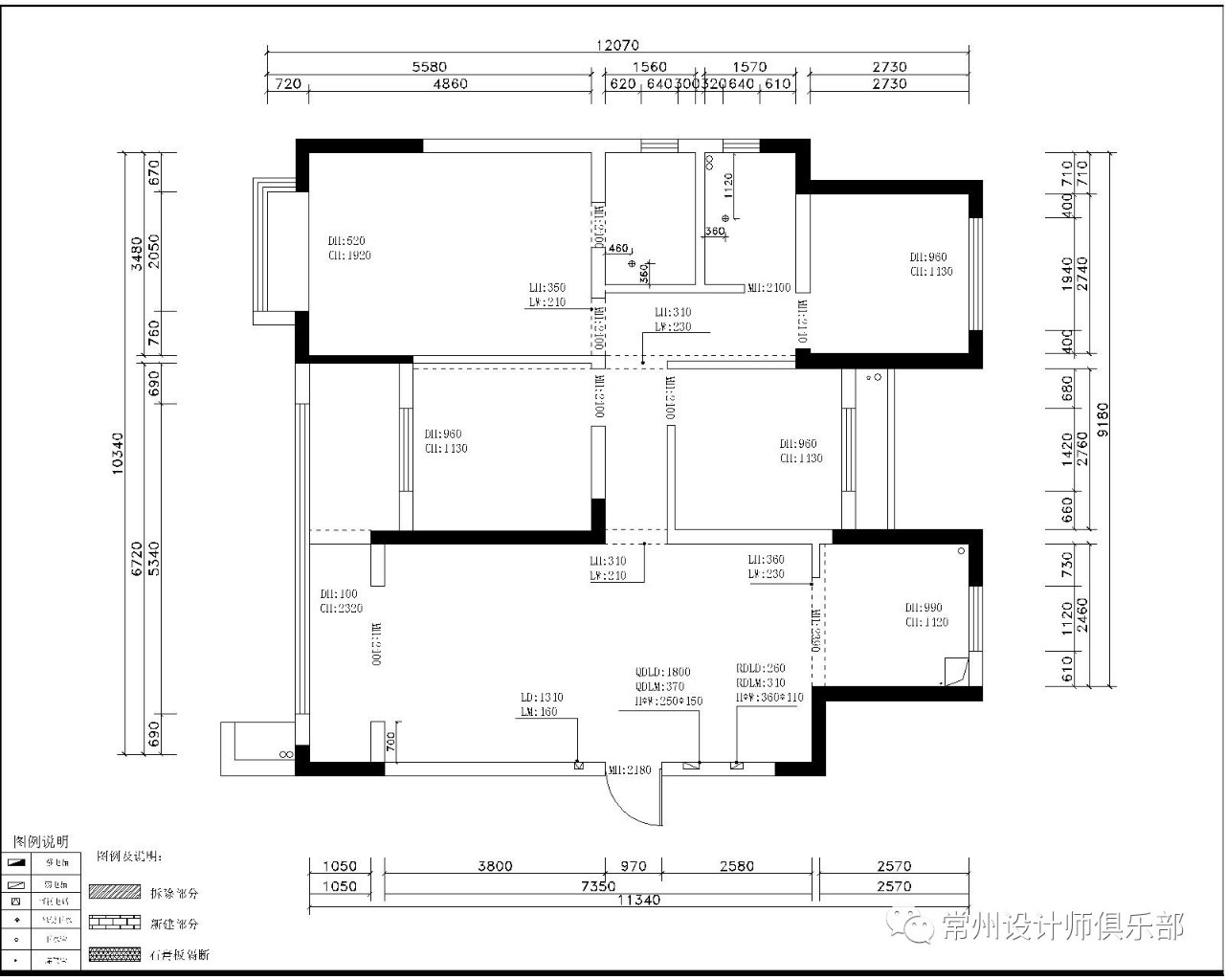
▼平面图


更多关于设计师张凡

张凡
香港维策装饰常州分公司主任设计师
人物简介
毕业于四川美术学院环境艺术设计
2009年于江西美院任职专业指导老师
2011年进入维策任职至今
经典案例
溪湖小镇小镇别墅,莱蒙城别墅,波士别馆别墅,龙湖龙誉城花园,龙湖香醍漫步花园,九龙仓繁华里花园,凤凰湖一号花园,莱蒙时代花园,新城御景湾花园。