所谓浪漫情怀不一定要建造城堡,
所谓古风拙意亦不一定要入深山,寻古刹。
生活点滴,来自心间的安稳平和,随意舒怡,以及所热爱的这生活空间。
今天山石君便带大家走进一处别具一格的家庭空间,感受不同于他人的别致浪漫,古意情怀……

所在小区:沈阳龙湖唐宁one
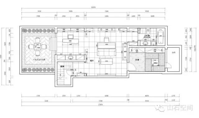
户型:一楼及地下室
一楼:三室二厅一厨二卫
地下室:一室二厅一卫
面积:240平方米
风格:美式+新中式混搭
项目介绍
本案上下两层,地下一层有阳光房。故在功能安排上,充分利用了自身特点,一楼侧重于日常生活的必备功能,日常起居生活于一楼。地下一层则将花园、影音室、琴房等娱乐休闲空间巧妙布局。
在风格上,一层采用稳中大方不失浪漫的美式风格,三代同堂的和美空间,更添美意。地下一层则结合阳光房花园形式,以新中式元素为装饰亮点,让整个家居空间尽显雅致舒适亦更具文化内涵。
一楼空间
大方稳中的美式风情,让厅堂更显内敛奢华,凸显出品质之家的质感。
不失浪漫的空间,幸福美好的家庭生活……墙面、吊棚、和谐统一的家具,给家更多缤纷质感。
主卧。
老人房。中西结合,给老人的晚年生活提供一个舒适、舒心的空间。
儿卧。

卫生间。
地下一层

室内花园及会客区、琴房。古香古色的装饰氛围,不失都市质感的生活节奏,家可以如此独特别致。

影音休闲区。

细节展现。
家对于每一个人而言,都是一个重要的地方。
那么,怎样才算是最好的家?选择一个什么样的方式,把家打造成心里的样子?
山石空间,将最适合用户的定制设计,配套落地,付诸行动,用心建造你心里的家。