
冯楠老师
功能布局篇

一楼原始结构图

二楼原始结构图
男主人:35岁
外贸公司高管,随和亲切,幽默风趣,喜欢品酒,雪茄,收藏,追求典雅的高品质生活。因工作需要, 经常参加主流媒体活动;对中国古典文化颇有兴趣。
女主人:32岁
气质高雅,落落大方,全职太太,喜欢旅游,与朋友闲谈小聚,也喜欢安静的在家看书品茶,喜欢和欣赏高贵奢华的风格。
男孩:6岁
活泼可爱,聪明伶俐,喜欢模型车及漫画。
工程预算:25万
主材预算:42万

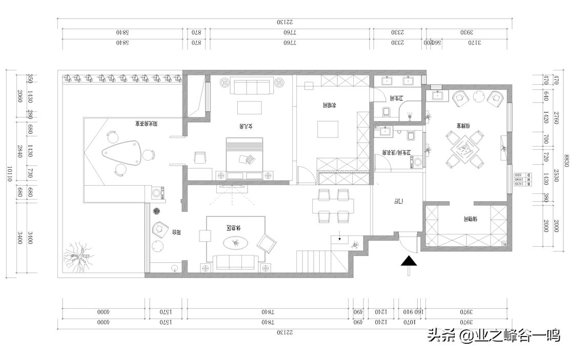
一楼平面布置图

二楼平面布置图
效果篇

客厅效果展现
色彩上运用了鲜明的对比色,运用高级黑与高级灰作为表现,给空间一种利落感觉,加上了明度比较高的驼色,米白色等,为居室呈现出一种温馨大气,时尚高雅的气息。

餐厅效果展现
装修上面以简洁奢华为主,采用木色精致的餐桌,在配上简约的餐椅,开放式的厨房让人耳目一新。

负一楼客厅效果展现
色彩上运用了鲜明的对比色,沐浴在柔和的暖色灯光下,充满了对生活的向往。电视背景墙运用了大面积的大理石铺贴给人以大气简约的韵味。

二楼茶室效果展现
透明玻璃的外观倒显得更加接地气简洁适宜,更加舒适。增添的绿植起到了小小的画龙点睛。
软装篇

典雅轻奢风潮

色卡:银色+青椒绿+魅影黑色+亮白色+蜂蜜黄
这样配色经典而令人无限回味,就像优雅的名媛般,穿梭于精致与时尚之间,打造出轻奢典雅的格调视觉。展现着纯净、明亮、简洁,沉稳的视觉感受。在这套案例中,设计师利用稳重的颜色额创造出优雅清透的居家环境,又以几抹温馨的清新的颜色作为强调点缀,于简洁之中展现居家的舒怡感。
家具参考



灯具参考



感谢您的收看,喜欢关注我吧!