土拍让人有些摸不着头脑,原定早上9点开始在国土资源局现场出让8宗地,但是小编在现场只看到了5宗地的拍卖信息,另外3宗地到底是流拍了还是推迟拍卖了我们暂时还不得而知。下面我们就来看看土拍的详细情况。
原定出让的8宗地土拍




现场公示5宗地(郑州金科城)土拍

郑政出[2015]122号土拍
底价成交是今天的一大特色,地块的买家看来也是早已有了定数。
地块位置示意图:

从图位置上来说122号地块的位置距离高新区两大主干道非常近,但进入地块的道路尚未完全修通。目前地块周围有五个项目在售或待售。
来看看122号地块的成交企业:

仔细观察这个郑州新银科置业有限公司的股东我们发现,它的背后竟然是全国一线房企金科地产,那么本次拿地将标志着金科地产正式进驻郑州。



我们看到,作为一家在深圳主板上市的一线房企,金科地产以低密产品见长,此次入驻高新区,其实力不容小觑。该地块是瓦屋里村城中村改造项目,暂定案名金科城,我们将持续重点关注。
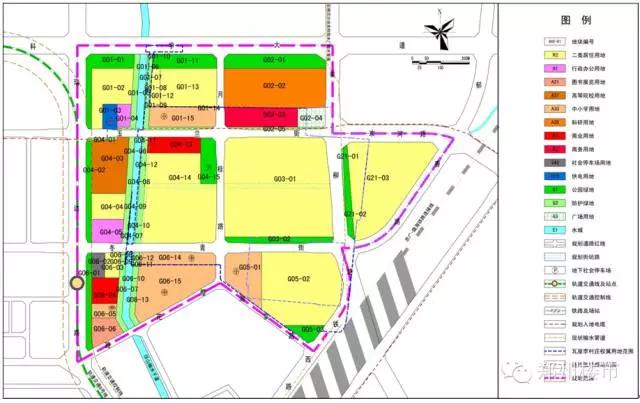
最后来看看目前地块的规划和现状:







郑政出[2015]124号(美景麟起城)土拍
地块位置示意图:


从图位置上来说124号地块的位置距离文化北路非常近,但进入地块的道路仅有一条小土路而已。目前地块周围有锦艺金水湾项目在售。
来看看124号地块的成交企业:

美景置业隶属美景集团旗下,想必本地的业主们都听说过,其在郑州开发过的项目都具有相当高的品质,是本地品质房企中的佼佼者。



该地块是杨庄村城中村改造项目,案名美景麟起城,目前在售,了解项目详细信息请关注我们的米宅平台,给您第一手的楼盘信息。

最后来看看目前地块的规划和现状:








郑政出[2015]125-127号(建业花园里)土拍
地块位置示意图:

从图位置上来说125-127号地块的位置附近现状路较多,目前规划路尚在完善当中。
来看看125-127号地块的成交企业:

建业集团,本土房企的老大哥。该地块是金洼村城中村改造项目,案名建业花园里,目前在售,了解项目详细信息请关注我们的米宅平台,给您第一手的楼盘信息。
最后来看看目前地块的规划和现状:













(完)
---------------------分割线
未经许可,禁止转载,经许可后转载注明:
转自微信公众平台【郑州楼市】【ID:zzloushi】
---分隔线---
总编微信(88371392) 长年为大家服务,欢迎投稿:[email protected]
郑州楼市:【订阅号】zzloushi 【网址】www.zzls.com 【勾搭微信】88371392