鹭湖宫户型图深度解析
小区:鹭湖宫
面积:200
风格:新中式
设计师:潭清春


新中式风格介绍:
新中式风格主要包括两方面的基本内容,一是中国传统风格文化意义在当前时代背景下的演绎;一是对中国当代文化充分理解基础上的当代设计。新中式风格不是纯粹的元素堆砌,而是通过对传统文化的认识,将现代元素和传统元素结合在一起,以现代人的审美需求来打造富有传统韵味的事物,让传统艺术在当今社会得到合适的体现。
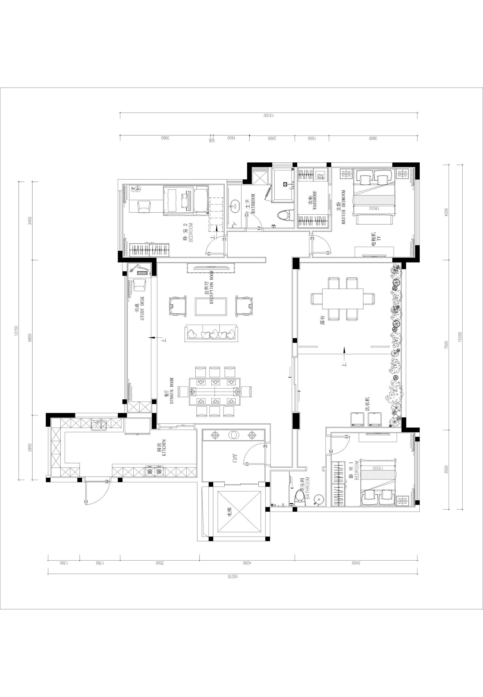
平面户型图:
整体户型方正,利于后期规划设计,设计师根据业主的需求,设计出富含禅意的新中式风格,让人的心灵得到净化。

鹭湖宫平面户型图
设计解析:
客厅区域采用成熟稳重的棕色系为主色调,搭配干净利落的线条使整体空间感觉更加丰富,大而不空、厚而不重,有格调又不显压抑。

鹭湖宫客厅效果图

半通透的隔山元素,既阻挡了视线也让空气能够自由流通,上顶天下顶地的设计,让人有一种顶天立地的感觉。

鹭湖宫休闲区域效果图

卧室区域沿用客厅的设计理念,采用干净利落的线条,营造出一种简洁舒适的休息环境,原木色的巧妙搭配与设计让人不会因为因为颜色的厚重感而显得压抑。

鹭湖宫卧室效果图
卫生间区域主要采用抛光地砖为设计元素,运用砖体上墙的设计理念,给整体空间一种简洁、大气的视觉效果、镜面区域运用中式元素的壁灯设计,让整体空间不失稳重感。

鹭湖宫卫生间效果图
