若非神助笔,
砚水恐藏龙。
研尽一寸墨,
扫成千仞峰。
壁根堆乱石,
床罅插枯松。
基本信息
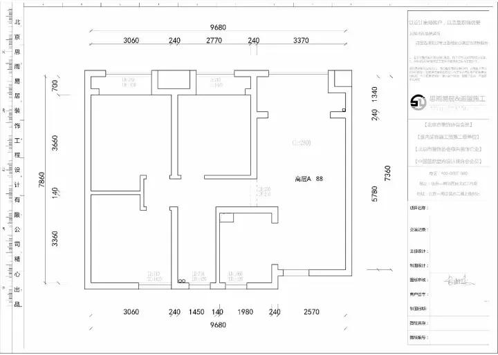
小区:华建AT上院高层A户型
面积:88平米
居住人口:年轻夫妻带小孩的三口之家
原始平面结构图

现场结构照片

户型痛点
1.紧凑的小户型,三个房间,缺少家庭活动空间;
2.客餐厅面积狭小;
3.缺少储物空间及休闲空间。
户型解决方案
1.餐厅做卡座处理,把鞋柜与餐厅整合到一起,既扩大了空间感又多出了储物空间;
2.客厅电视墙连着餐厅卡座做一整排柜子,既是电视墙又是书柜,增添家里的艺术气息;
3.南面的小房间做成开放式书房,既是书房又是一个家庭的活动中心,父母与孩子可以一起学习一起交流,这样避免孩子单独待在房间里打游戏,父母能更多的与孩子进行沟通;
4.主卧室也进行了扩大,增加了一组衣柜,这样解决了储物功能,飘窗下放上休闲桌椅,闲来喝喝茶,看看书……….
5.小孩房做榻榻米,每个空间都有单独的储物空间,榻榻米在最小的范围使空间得到最大化利用,这样小房间不会显得拥堵。
主案设计师初步手稿

团队电脑版深化设计图展现






欢迎继续关注我们对这个案例的开展与更新。
如果你想了解更多本小区或相似户型设计,
你可以直接联系我们客服,
你也可以关注思雨易居装饰公众号,