

【幸福敲门】是幸福里App专门为购房者打造的内容栏目,全国独家深度真实二手小区测评。买房前,在幸福敲门看小区测评。
这篇文章会给大家详细分析市民新村小区的情况,包括户型、居民结构、建筑界面、小区环境、周边配套等。该小区对口黄浦区第一梯队公办小学——上外黄浦外国语小学,是挂户口低总价的首选。
我们会给大家介绍市民新村中比较有特色的二房和三房户型,并给出初步的购买建议。

小区标签:名校环绕+带公园+靠地铁(12号线)

2.1 小区优缺点
2.1.1 优点
交通情况:该小区邻近轨道交通,出门250米即是4号线和8号线的*藏西**南路站。
产品力:该小区属于典型的老公房,绿化率一般,房龄1965至1985年,均为5-6层的楼梯房。

教育资源:该小区对口上外黄浦外国语小学和大同初级中学,它们都是黄浦区一梯队的公办学校。
在市民新村购买房产时,可以选择低总价的挂户口,也可以选择两房、三房兼顾自住功能。1房面积10-45平米,2房面积20-65平米、3房面积58-79平米,价格300万到700万。
2.1.2 缺点
主要是房龄老,65-85年建造的;房型设计上比较紧凑,很少有南北通户型。
2.2 推荐购房方案
在市民新村置业,可以考虑300万左右的低总价1房挂户口,650万左右的小二房兼顾自住需求。
17平米1室

主卧朝南,暗厨暗卫,是挂户口的低总价首选。
60平米2室1厅1卫

该两室户型,双卧朝南,明卫明厨,无卫生间。
3.小区分析
3.1 基础信息表

4.小区周边配套
4.1 教育学区
小区对口上外-黄浦外国语小学和大同初级中学均为黄浦区第一梯队的公办学校。


4.2 商业配套
小区周边较近的超市、菜场为弘辉名苑的沿街商铺,包含全家、喜士多,精品菜场;距离小区最近的大型商场是汇暻生活广场,约1.5公里。



汇暻生活广场集餐饮、休闲、娱乐、购物为一体,面积35000平米,生活气息很浓,算是比较亲民的大型商场。


4.3 医疗配套:第九人民医院

第九人民医院是一家三级甲等医院。它的特色科室有内科、外科和口腔科。该医院距离市民新村较近,约500米。
5.板块概况
世博滨江是黄浦区最南侧临江板块,各项配套都比较完善,城市界面新旧结合。
通过市中心的主干线-地铁8、13号线经过世博滨江,前往淮海中路等地仅需7分钟左右,城市核心近在咫尺,距离江对岸的浦东世博商务区也仅有一站地铁的距离。
驾车出行方面,可上南北高架和内环线高架。综合来讲,世博滨江是交通很方便的一个板块,上班地点在浦西市中心或浦东前后滩的,通勤时间很短。
黄浦区是上海商业很繁华的一个区,但世博滨江的商业略显贫瘠,整个板块内没有综合性的商业中心,只有板块北侧有一个社区型商业的汇璟生活广场。
世博滨江的医疗和教育资源特别突出,处于全上海顶尖水准。全市前五综合性三甲医院的第九人民医院紧靠板块的北侧,九院的整形外科全国闻名。
板块内的上外黄浦外国语小学是黄浦区一梯队的公办小学,风格偏向素质教育,强项是数学和英语,每年都有一部分优秀毕业生考进黄浦区最好的民办初中——立达中学。大部分毕业生可以直接进入对口的大同初级中学,它也是黄浦区最好的公办初中。上外黄浦的学区在全市范围来看也是高水准公办双学区的最有选择之一。
世博滨江的住宅层次较为分明,各阶梯总价的产品都有,单价均在10-11万左右。
区域内的顶级豪宅,如黄浦滩名苑,总价在3000万以上。
次一级的品质豪宅,如绿地黄浦滨江和融创滨江壹号院,三房总价也在1800万以上。
带学区的普通住宅,如精文苑,小三房总价在1200万元左右。
带学区的老大楼,小三房在1100万,小两房在750万元左右。
板块内挂学区的老公房房源比较紧缺,可勉强居住的小两房总价也在700万元左右,门槛较高。
6.对口优质学区分析
对口上外黄浦外国语小学,属于黄浦区第一梯队公立小学。
该小学对口大同初级中学,属于黄浦区第一梯队公立初中。
上外黄浦外国语小学一直理性地贯彻着快乐教育的理念,这里的老师的整体素质很高,老师珍视每一个孩子,不会歧视差生,注重孩子的全面发展,对孩子性格的形成和发展非常关注。
大同初级中学是黄浦区排名前三的初中,八大之一的大同中学的干儿子。
就读上外黄浦外国语小学,在小升初阶段进可攻退可守。如以四校为目的,将大同初级中学作为保底,考立达理科班或外区好学校是不错的路径。
7.小区概况
7.1 建筑外立面+楼道

小区的外立面使用的是涂料,当前状态还不差,没有发现明显的脱落现象,色调较老旧。

楼道上也就是普通的样子,属于典型的老公房。
7.2 环境、设施

小区的绿化很一般,只能说是多种了几棵树。

当然在小区里面转一下,还是能看到一些绿色植被的。

小区中安装的晾衣架很接地气,平时晾晒被褥很是方便。
7.3 物业服务:物业认真负责,小区内部干净整洁

小区门的大门一直敞开,可以供人自由进出。
7.4 居民结构:该小区原为国企员工分房,现多为挂户口上学后进行出租,这里退休国企老人较多,部分为外来打工租户。
8.户型分析
8.1 1室1厅1卫,35平

暗厨,暗卫,主卧朝南采光好,主卧的空间较大。
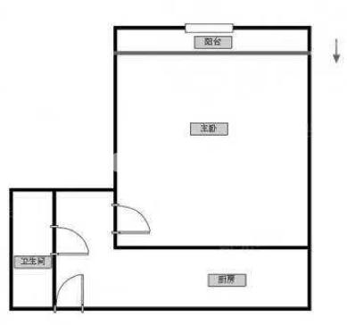
8.2 2室0厅1卫,45平

比较紧凑的两室户型,主卧朝南次卧面积偏小,卫生间和厨房都有窗,厨房有工作阳台。

市民新村地处世博滨江,位置优越;对口黄浦区优质的小学和初中,是很多重视教育家庭的低总价首选。
推荐购买400万左右低总价1房挂户口,或650万左右的2房兼顾自住。
以上内容由「幸福里APP」 &「上海学区房攻略」联合出品。
推荐阅读:
200万首付入手上外黄浦学区房,登顶上海教育鄙视链顶端
楼下*轨双**交,孩子进顶级黄浦名校,神盘耀江花园到底好在哪里
性价比超高:品质+教育*管双**齐下,白玉兰小区重磅测评我只告诉你