作为一个标准的90后新潮人士,新房子自然要装出最为时尚的感觉。还没装修前就四处的咨询装饰公司,也没比较多少家,这是我找的第二家,方案和感觉对了,就开工了。
开春装修的南昌业主们看过来,开春大戏狂促活动正在进行中,如果您还在为装修而烦恼,速来咨询哦~(在南昌,100平装修到底要花多少钱?装修一套房子到底需要经历哪些流程?怎样装修才能省心省力省钱?设计师在线为您专业解答。微信:diguadou888)
楼盘地址:莱蒙都会莱蒙都会11-2-702室 南昌(看 工地可预约哦~其他户型方案均有)
户型:三房
面积:130平方米
风格:现代
公司造价:9万 半包
主材:浩尔宝呼吸涂料 德莱宝集成吊顶 新中源瓷砖
项目:1.水电;2.石材铺贴、墙砖铺贴、防水防潮处理;3.灯具安装;4.木制作及油漆等

客厅

餐厅

卧室

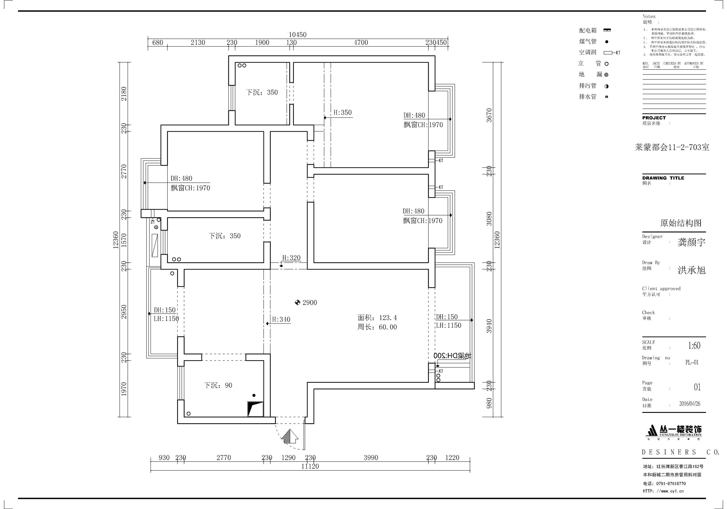
原始结构图

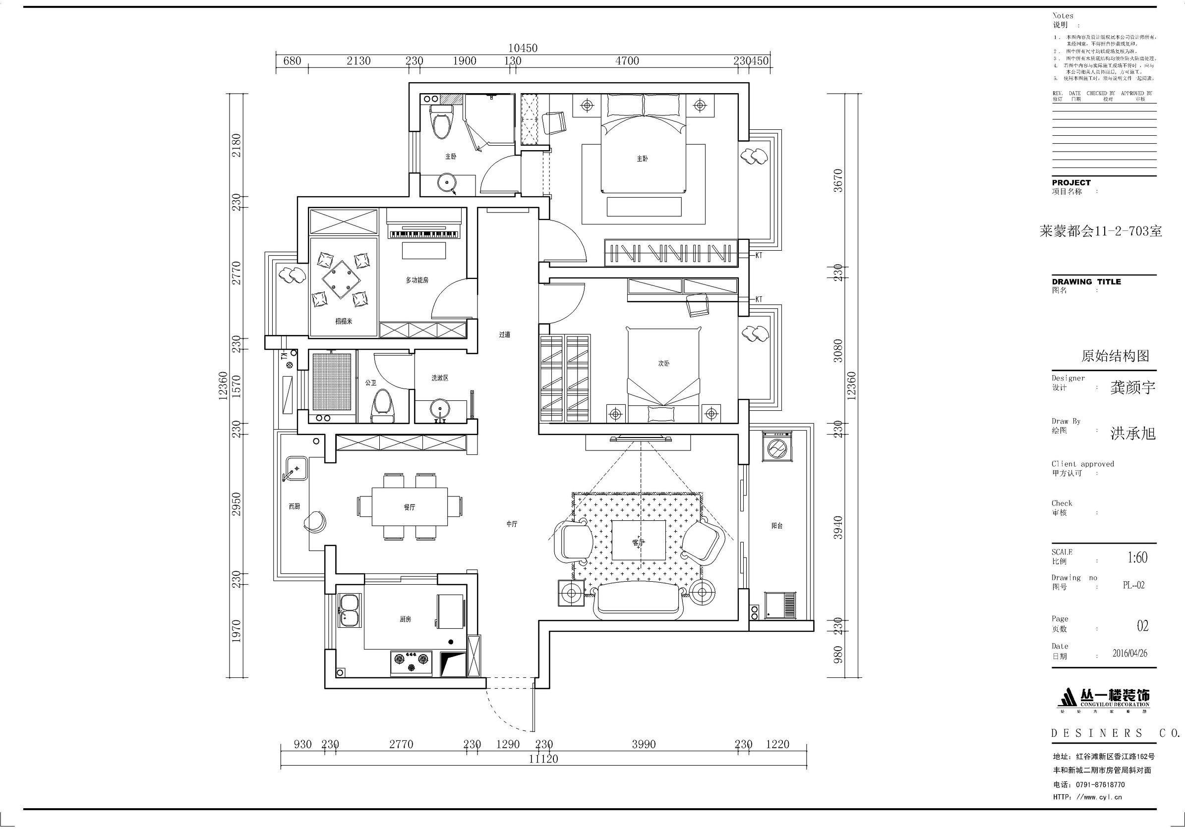
平面布置图
所展现工地为正在施工的工地,需要看实景工地的亲,欢迎咨询,莱蒙都会更多户型、不同风格工地正在火热开工中!
南昌各大楼盘近期交房(红谷世纪花园、联发江岸汇景、莱蒙都会、海域香廷、保利金香槟、新力雅园、中骏蓝湾、中央香榭、众森红谷一品、路通沁园、绿地国际博览城、万达旅游城....)的业主,赶紧GET起来吧!
-------我是华丽丽的分隔线--------
设计师微信:diguadou888 (仅限南昌)