位于湾里区的香逸熙园小区业主看过来!找香逸熙园的户型图,或者看香逸熙园的户型方案,找当下最为流行的装饰设计方案,年底这段时间可不要瞎忙哦,这里方案和设计都给您准备好了,先来看看一套150平和一套100平的,更多其他风格的请长期关注哦。(香逸熙园洋房119平、128平、135平户型方案欢迎来查看。)夜不能寐的你,操心装修的你,还不来看看呢。
香逸熙园150平复式楼现代简约风格,丛一楼装饰程官华首席设计师出品
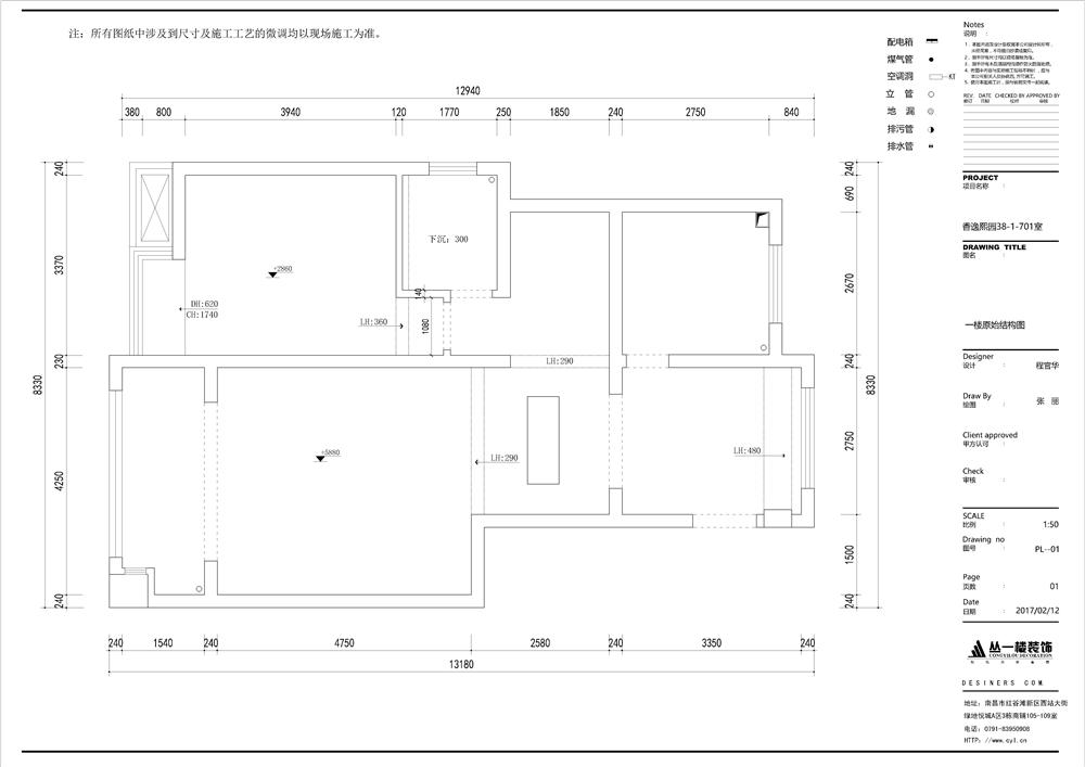
设 计 师: 程官华
项目名称: 香逸熙园38-2-701室
装修风格: 现代简约
建筑面积: 150平方
工程造价: 11万
主要材料:大理石、墙纸、木色饰面板、黑色不锈钢条等
出品:南昌丛一楼装饰
设计说明:
本案采用以深色系为主:灰色、白色、少量黑色,视觉上非常协调舒适。
客厅最大的特点就是运用了朴素的色彩、简约的家具、流畅的线条,让空间的每一处都呈现出一种自然与舒适。虽然线条与颜色简单,但简约风格多功能可不简单。每一物件都强调相对与人的机理功能学和贮物使用合理性。
黑色的餐桌搭配,现代与自然元素相结合,以暖色调稍作点缀。颜色与家具“少即是多”的设计手法,体现得淋漓尽致。

香逸熙园150平复式楼现代简约风--餐厅

香逸熙园150平复式楼现代简约风--厨房

香逸熙园150平复式楼现代简约风--卫浴间

香逸熙园150平复式楼现代简约风--玄关

香逸熙园150平复式楼现代简约风--主卧

一楼原始图

二楼现浇图
香逸熙园100平现代简约风设计方案_丛一楼装饰张扬设计师出品
设计师:张扬
方案出品:南昌丛一楼装饰
职务:主任设计师
楼盘:香逸熙园53-1-1404
面积:100平方米
造价:7万
风格:现代简约
项目:1、水电;2、地砖铺贴、墙砖铺贴、防水防潮处理3、天花板造型、 油漆4、灯具安装
设计说明:
在空间上给居住者营造一种生活记忆和氛围,浅色为主色调,以深色为点缀。优雅简洁的线条比例,加上家具和软饰的和谐统一,使得整个空间时尚简约但又不是奢华。

香逸熙园100平现代简约风--客厅

香逸熙园100平现代简约风--客厅原建图

香逸熙园100平现代简约风--客厅平面图
去香逸熙园施工工地巡检,看现场施工图







-------我是华丽丽的分隔线--------
关注我的头条号后,戳“找我设计”,领取南昌各大楼盘装修设计方案
点击下面图片也可以