东方艺彩案例分析 (东方艺彩装修设计)

设计说明:

7天优品是酒店集团全新推出的高端经济型酒店。本设计主张“年轻的选择”的生活态度,青春与个性的交融,独特而简约的设计,卓越的舒适和品质,尽心让每位宾客享受一段轻松自在的舒适之旅。

独特主题“优吧”。一个集体休闲书吧、休闲电游、自助商务、自助餐饮等各种元素的独特闲憩空间。

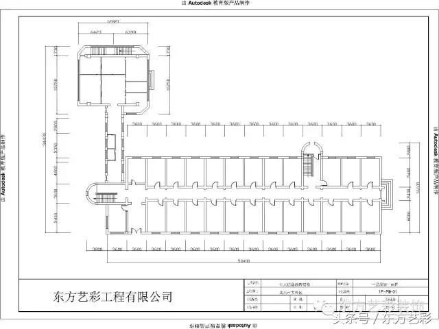
原始平面图:

东方艺彩案例分析,东方艺彩最新视频

一层↑

东方艺彩案例分析,东方艺彩最新视频

二层↑

东方艺彩案例分析,东方艺彩最新视频

三层↑

东方艺彩案例分析,东方艺彩最新视频

四层↑

东方艺彩案例分析,东方艺彩最新视频

五层↑

东方艺彩案例分析,东方艺彩最新视频

六层↑

平面布置图:

东方艺彩案例分析,东方艺彩最新视频

一层↑

东方艺彩案例分析,东方艺彩最新视频

二层↑

东方艺彩案例分析,东方艺彩最新视频

三层↑

东方艺彩案例分析,东方艺彩最新视频

四层↑

东方艺彩案例分析,东方艺彩最新视频

五层↑

东方艺彩案例分析,东方艺彩最新视频

六层↑

效果图:

东方艺彩案例分析,东方艺彩最新视频

外景↑

东方艺彩案例分析,东方艺彩最新视频

外景↑

东方艺彩案例分析,东方艺彩最新视频

外景↑

东方艺彩案例分析,东方艺彩最新视频

房间↑

东方艺彩案例分析,东方艺彩最新视频

房间↑

东方艺彩案例分析,东方艺彩最新视频

大堂↑

东方艺彩案例分析,东方艺彩最新视频

大堂↑

东方艺彩案例分析,东方艺彩最新视频

大堂↑

东方艺彩案例分析,东方艺彩最新视频

大堂↑

东方艺彩案例分析,东方艺彩最新视频

前台↑