想要不一样的美式-合肥物资局装修案例
想要不一样的美式
于是 才有这部作品
其实
老房也可以不用中规中矩
其实
黑色和灰绿色也可以很温馨
自己的家
住的人喜欢就够了
有爱
有你
才是家
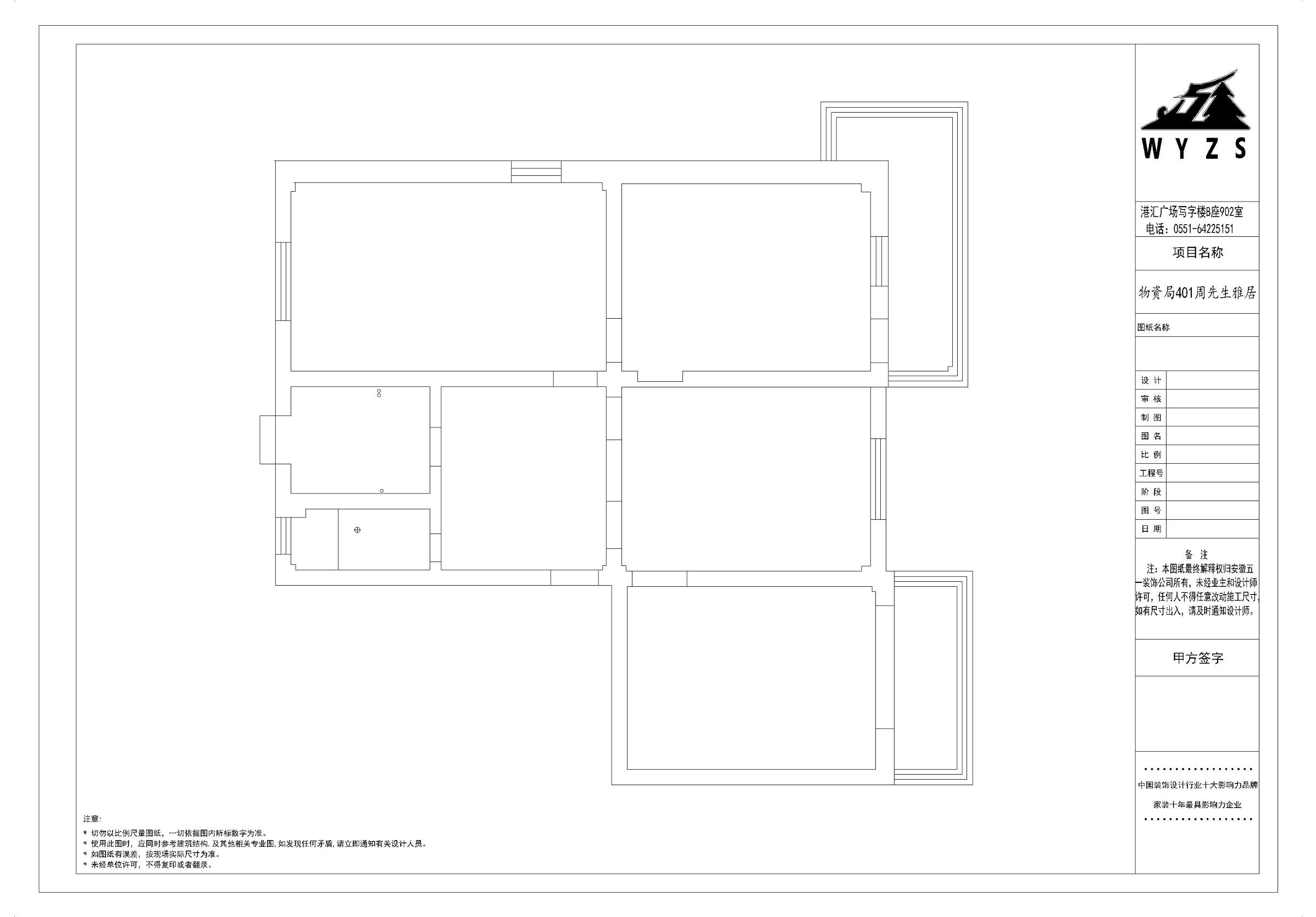
原始户型图

本案户型方正,两房朝南,南北通透。厨房和卫生间空间很小,采光不足,将原有客餐厅空间打通,不仅扩大了客厅空间,还增强采光;主卧空间比较大,设计中考虑业主未来可能会要二宝,主卧旁边预留了一个活动空间,暂时又满足储物需求。旁边设计了侧重简约型的主卫。
平面布局方案

【客户需求】
三口之家,业主父母偶尔会过来同住。业主希望设计中有局部亮点,室内光线明亮,随时可以听音乐;针对业主的需求,设计时最大限度利用空间做储物收纳;并在墙面增加点光源和在吊顶灯加入筒灯设计提升空间明亮度;全屋环绕音响满足音乐需求。
从平面空间上可以看出,客餐厅打通后,空间动线流畅,光线明亮。
使厨房操作更加人性化,空间更加合理化,同时实现了厨房电器很好的收纳。嵌
入式浴室柜和抬高面处理的淋浴区使得卫生间更加实用和通透。主卧增加了活动
式组合式衣帽柜和整体卫生间。假如以后增加人口和老人偶尔来住也很方便。
客厅


依稀还记得,当时测量正值盛夏的夜晚,业主也是抽时间过去的,业主本身是建筑事务所设计总监,非常之专业,第二次交流到很晚他们在孩子的电话催促中才回去的。对于他们而言,“家”不失一种概念,而是一种体验,一种不忘初心的与自己与世界的对话。整体空间色调以灰绿色+蓝色为主,打造出温馨,舒适的居住空间。开放式的空间,稳重而不失格调。




本案为合肥五一装饰李维峰原创作品。