民安北郡的三室两厅户型的业主为自家选择了浪漫的经典法式风格,法式讲求点缀在自然中,并不在乎面积大小,追求色彩和内在联系,让人感到很大的活动空间。 本案例,空间不求简单的协调,而是崇尚冲突之美,在设计上讲求心灵的自然回归感,给人一种扑面而来的浓郁气息。
装修风格:经典法式
美巢套餐:528套餐+个性化造型
户型面积:120平方
套餐造价:22万
玄关

客厅全景

客厅

电视背景墙

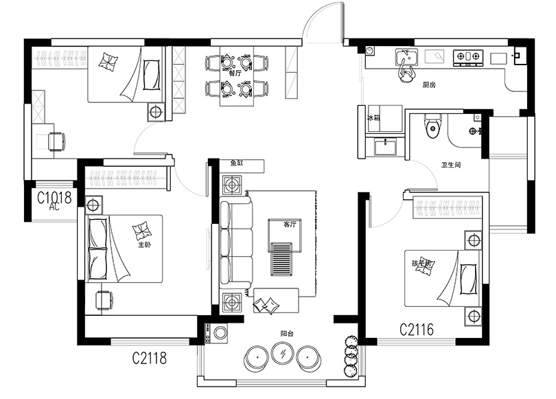
户型方案布局

餐厅

民安北郡的三室两厅户型的业主为自家选择了浪漫的经典法式风格,法式讲求点缀在自然中,并不在乎面积大小,追求色彩和内在联系,让人感到很大的活动空间。 本案例,空间不求简单的协调,而是崇尚冲突之美,在设计上讲求心灵的自然回归感,给人一种扑面而来的浓郁气息。
装修风格:经典法式
美巢套餐:528套餐+个性化造型
户型面积:120平方
套餐造价:22万





